Herunterladen Inhalt Inhalt Diese Seite drucken

ABB ControlMaster CM30 Bedienungsanleitung Seite 35

Universal-prozessregler
Vorschau ausblenden Andere Handbücher für ControlMaster CM30:
Inhaltsverzeichnis
ControlMaster CM30, CM50 und CMF310
Universal-Prozessregler,
...Standard
Rglkr 1 (2) Zeitprop.
Zykluszeit 1
Zykluszeit 2
Alarm 1 (8)
Schaltpunkt
IM/CM/ED–DE Rev. Z
1
1
/
,
/
DIN und Feldmontage
4
2
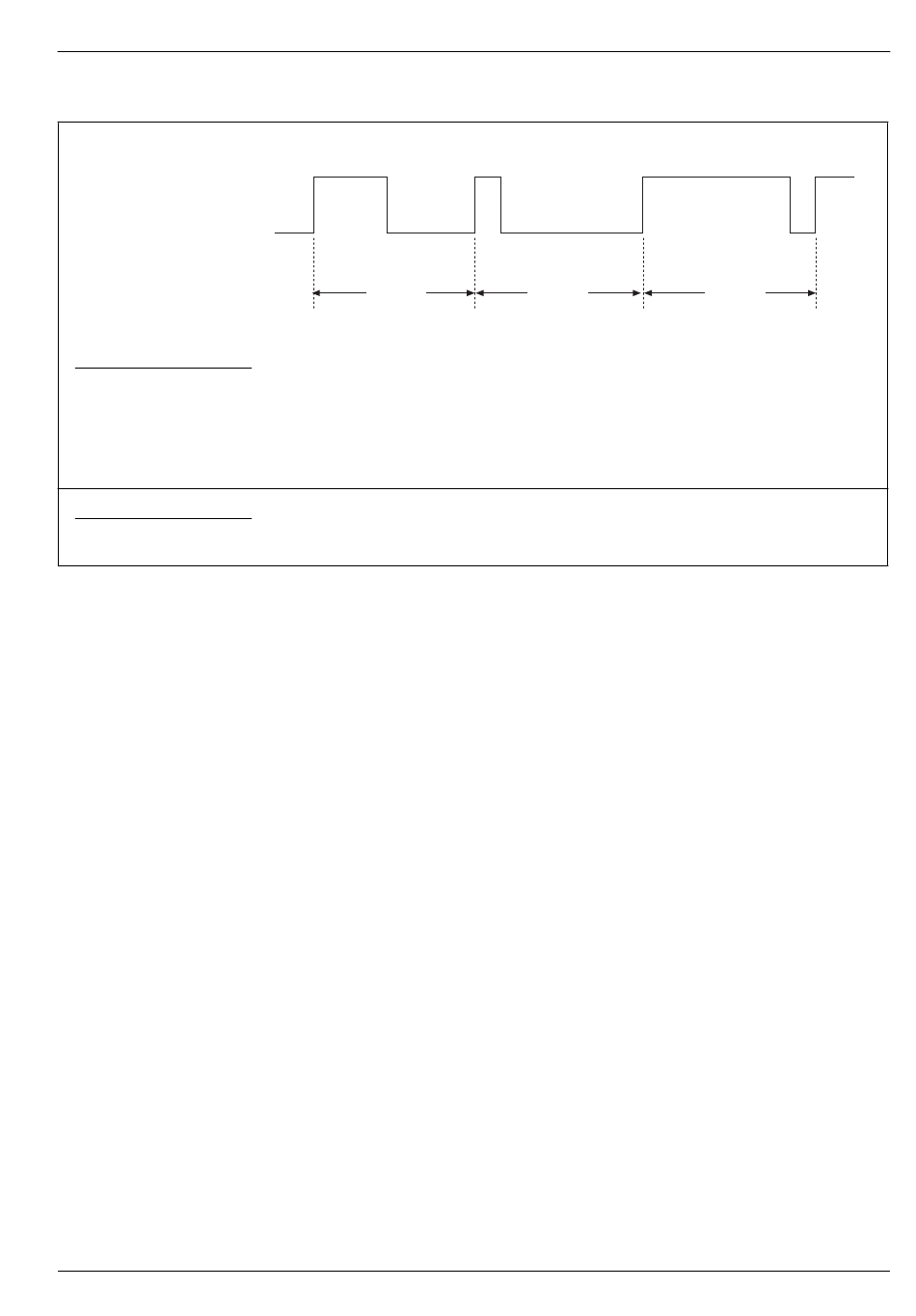
Die Aktivzeit des Ausgangsimpulses ist proportional zum Wert des Reglerausgangs.
Bei einem Ausgang von 100 % ist der Impuls über die gesamte Zykluszeit aktiv, z. B.:
5 s
5 s
Ausgang 50 %
Zykluszeit
= 10 s
Hinweis: Nur verfügbar, wenn Ausgangstyp auf Zeitproportional oder Getrennte Ergeb.
eingestellt ist (und ein Ausgang ein Relais oder ein Digitalausgang ist) – siehe Seite 34.
Die bei zeitproportionalen Ausgängen zu verwendende Zykluszeit.
Bei Getrennte Ergeb. gilt diese Einstellung für Ausgang 1 – siehe Seite 34.
Die bei zeitproportionalen Ausgängen zu verwendende Zykluszeit.
Bei Getrennte Ergeb. gilt diese Einstellung für Ausgang 2 – siehe Seite 34.
Hinweis: Nur verfügbar, wenn Ausgangstyp auf Getrennte Ergeb. gesetzt ist.
Der Alarmschaltpunkt in physikalischen Einheiten. Details zu den Parametern finden Sie
unter Prozess Alarm (Seite 58).
1 s
9 s
Ausgang 10 %
Zykluszeit
= 10 s
6 Standardebene
9 s
1 s
Ausgang 90 %
Zykluszeit
= 10 s
33
Inhaltsverzeichnis
loading

Diese Anleitung auch für:

Controlmaster cm50Controlmaster cm310

Inhaltsverzeichnis