Herunterladen Inhalt Inhalt Diese Seite drucken

Namen Van Onderdelen - Hitachi Ras-4Fsvn3E Bedienungsanleitung

Set free mini series
Vorschau ausblenden Andere Handbücher für RAS-4FSVN3E:
Inhaltsverzeichnis
Verfügbare Sprachen
  • DE

Verfügbare Sprachen

  • DEUTSCH, seite 47

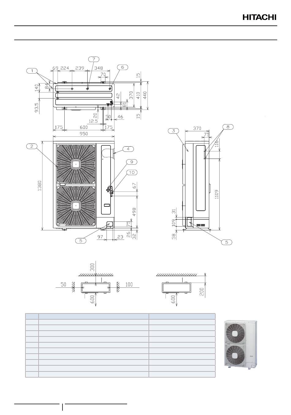
NAMEN VAN ONDERDELEN

6 NAMEN VAN ONDERDELEN
Nr.
1
Luchtinlaat
2
Luchtuitlaat
3
Onderhoudsklep
4
Elektrische schakelbox
5
Gaten voor koudemiddelleidingen en kabelkanalen
6
Aftapgaten
7
Aftapgaten
8
Montagegaten voor bevestiging op muur
9
Koudemiddelvloeistofleiding
10
Koudemiddelgasleiding
134
PMML0389B rev.1 - 07/2016
Beschrijving
Opmerkingen
3-Ø24
2-Ø26
4-(M5)
Moer getromte flens: Ø9,52 (3/8)
Moer getromte flens: Ø15,88 (5/8")
Inhaltsverzeichnis
loading

Inhaltsverzeichnis