Anmelden
Hochladen
Herunterladen
Zu meinen Handbüchern
Löschen
Teilen
URL dieser Seite:
HTML-Link:
Lesezeichen hinzufügen
Hinzufügen
Handbuch wird automatisch zu "Meine Handbücher" hinzugefügt
Diese Seite drucken
×
Lesezeichen wurde hinzugefügt
×
Zu meinen Handbüchern hinzugefügt
Anleitungen
Marken
Dimplex Anleitungen
Wärmepumpen
LI 16I-TUR
Montage- und gebrauchsanweisungen
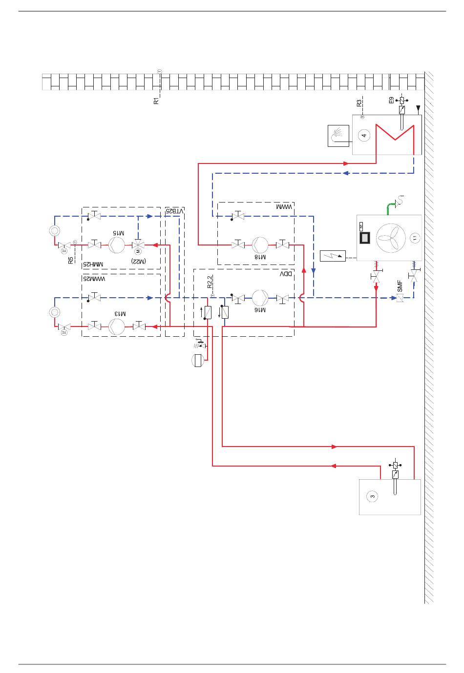
Hydraulische Einbindungsschema / Hydraulic Integration Diagram / Schéma D'intégration Hydraulique - Dimplex Li 16I-Tur Montage- Und Gebrauchsanweisungen
Vorschau ausblenden
Andere Handbücher für LI 16I-TUR
:
Montage- und gebrauchsanweisung
(32 Seiten)
1
2
3
4
5
6
7
8
9
10
11
12
13
14
15
16
17
18
19
20
21
22
23
24
25
26
27
28
29
30
31
32
33
34
35
36
37
38
39
40
41
42
43
44
45
46
47
48
49
50
51
52
53
54
55
56
57
58
59
60
61
62
63
64
65
66
67
68
69
70
71
72
73
74
75
76
77
78
79
80
81
82
83
84
85
86
87
88
89
90
91
92
93
94
95
96
97
98
99
100
101
102
103
104
105
106
107
108
109
110
111
112
113
114
115
116
117
118
119
120
121
122
123
124
125
126
127
128
129
130
131
132
133
134
135
136
137
138
139
140
141
142
143
144
145
146
147
148
Seite
von
148
Vorwärts
/
148
Inhalt
Inhaltsverzeichnis
Fehlerbehebung
Lesezeichen
Anhang · Appendix · Annexes
LI 16I-TUR
3.2 Hydraulische Einbindungsschema / Hydraulic integration diagram /
Schéma d'intégration hydraulique
A-VIII
452169.66.06b · FD 0411
www.dimplex.de
Inhalt
sverzeichnis
Vorherige
Seite
Nächste
Seite
1
...
69
70
71
72
73
74
75
76
Kapitel
Deutsch
3
English
25
Français
45
Italiano
79
Polski
115
Verwandte Anleitungen für Dimplex LI 16I-TUR
Wärmepumpen Dimplex LI 16I-TUR Montage- Und Gebrauchsanweisung
Luft-wasser-wärmepumpe für innenaufstellung (32 Seiten)
Wärmepumpen Dimplex SIK 7 TE-2 Gebrauchsanweisung
Sole/wasserwärmepumpe für innenaufstellung (48 Seiten)
Wärmepumpen Dimplex SIK 7 TE-2 Montage- Und Gebrauchsanweisung
(60 Seiten)
Wärmepumpen Dimplex LIKI 14TE Montage- Und Gebrauchsanweisung
Luft/wasserwärmepumpe für innenaufstellung (68 Seiten)
Wärmepumpen Dimplex LA 8AS Bedienungsanleitung
(242 Seiten)
Wärmepumpen Dimplex HPL 9S-TUW Montage- Und Gebrauchsanweisung
Luft-wasser-wärmepumpe für aussenaufstellung (76 Seiten)
Wärmepumpen Dimplex LA 12S-TUR Montage- Und Gebrauchsanweisungen
Luft-wasser-wärmepumpe für außenaufstellung (64 Seiten)
Wärmepumpen Dimplex LA 12S-TU Montage- Und Gebrauchsanweisungen
Luft/wasser-wärmepumpe fuer ausseneinstellung (60 Seiten)
Wärmepumpen Dimplex HPL 9S-TUW Montage- Und Gebrauchsanweisungen
Luft/wasser wärmepumpe für außenaufstellung (168 Seiten)
Wärmepumpen Dimplex Comfort 091HOIAOC6 Handbuch
(36 Seiten)
Wärmepumpen Dimplex System M Comfort 9 Montage- Und Gebrauchanweisung
(36 Seiten)
Wärmepumpen Dimplex LIA 0608HXCF M Montage- Und Gebrauchsanweisungen
Split-luft/wasser-wärmepumpe mit hydrobox (64 Seiten)
Wärmepumpen Dimplex LIA 1316HXCF Schnellinstallationsanleitung
Luft-wasser-wärmepumpe (6 Seiten)
Wärmepumpen Dimplex LIA 0608HXCF M Montage- Und Gebrauchsanweisungen
Split-luft/wasserwärmepumpe mit hydrobox (360 Seiten)
Wärmepumpen Dimplex 16CHOIAOC6 Bedienungsanleitung
(32 Seiten)
Wärmepumpen Dimplex LA 1118BWCP Montage- Und Gebrauchsanweisungen
Luft/wasser-warmepumpe fur auflenaufstellung (48 Seiten)
Verwandte Inhalte für Dimplex LI 16I-TUR
LI 9TU Hydraulische Einbindungsschema / Hydraulic Integration Diagram / Schéma D'intégration Hydraulique
Dimplex LI 9TU
LIK 12TU Hydraulische Einbindungsschema / Hydraulic Integration Diagram / Schéma D'intégration Hydraulique
Dimplex LIK 12TU
452160.66.75 Hydraulische Einbindungsschema / Hydraulic Integration Diagram / Schéma D'intégration Hydraulique
Dimplex 452160.66.75
LI 16I-TUR Hydraulische Einbindungsschema / Hydraulic Integration Diagram / Schéma D'intégration Hydraulique
Dimplex LI 16I-TUR
LIK 12TU Hydraulische Einbindungsschema / Hydraulic Integration Diagram / Schéma D'intégration Hydraulique
Dimplex LIK 12TU
LI 9TU Hydraulische Einbindungsschema / Hydraulic Integration Diagram / Schéma D'intégration Hydraulique
Dimplex LI 9TU
LA 60TU Hydraulische Einbindungsschema / Hydraulic Integration Diagram / Schéma D'intégration Hydraulique
Dimplex LA 60TU
LIK 12TU Hydraulische Einbindungsschema / Hydraulic Integration Diagram / Schéma D'intégration Hydraulique
Dimplex LIK 12TU
WI 65TU Hydraulisches Einbindungsschema / Hydraulic Integration Diagram / Schéma D'intégration Hydraulique
Dimplex WI 65TU
SI 6TU Hydraulisches Einbindungsschema / Hydraulic Integration Diagram / Schéma D'intégration Hydraulique
Dimplex SI 6TU
WI 10TU Hydraulisches Einbindungsschema / Hydraulic Integration Diagram / Schéma D'intégration Hydraulique
Dimplex WI 10TU
SIH 20TE Hydraulisches Einbindungsschema / Hydraulic Integration Diagram / Schéma D'intégration Hydraulique
Dimplex SIH 20TE
SI 35TU Hydraulisches Einbindungsschema / Hydraulic Integration Diagram / Schéma D'intégration Hydraulique
Dimplex SI 35TU
WI 65TU Hydraulisches Einbindungsschema / Hydraulic Integration Diagram / Schéma D'intégration Hydraulique
Dimplex WI 65TU
SI 26TU Hydraulisches Einbindungsschema / Hydraulic Integration Diagram / Schéma D'intégration Hydraulique
Dimplex SI 26TU
SI 6TU Hydraulisches Einbindungsschema / Hydraulic Integration Diagram / Schéma D'intégration Hydraulique
Dimplex SI 6TU
Drucken
Lesezeichen umbenennen
Lesezeichen löschen?
Möchten Sie es aus Ihren Handbüchern löschen?
Anmelden
Anmelden
ODER
Mit Facebook anmelden
Mit Google anmelden
Anleitung hochladen
Von PC hochladen
Von URL hochladen