Herunterladen Inhalt Inhalt Diese Seite drucken

Brainlab Curve ceiling-mounted single display Planungshandbuch Seite 84

Vorschau ausblenden Andere Handbücher für Curve ceiling-mounted single display:
Inhaltsverzeichnis
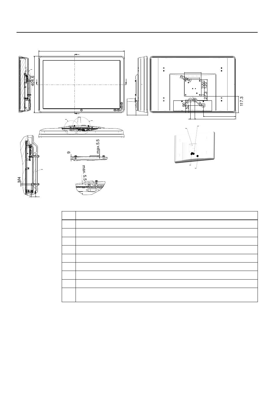
Maße
Display
A
D
A-A
C
A
15
Nr.
84 Technisches Planungshandbuch Aufl. 1.0 Curve
614.6
A
A
B
D-D
B
C
Beschreibung
Schnittdarstellung der potenziell erforderlichen Adapterplatte
Resultierende benötigte Schraubenlänge im Display
Maximaler Überstand des Blindstopfens
Maximale Vertiefung der Display-Rückwand relativ zu der VESA-Schnittstelle
Maximaler Überstand des Blindstopfens
Rückansicht des Displays (dargestellt ohne Adapterplatte und Schrauben)
Kabeldurchführung für Verbindungskabel
Blindstopfen
Blindstopfen (Kabeldurchführung für Verbindungskabel kann hier alternativ eingesetzt
werden)
Ceiling-Mounted Single Display Curve
D
63.6
84.5
Length of
cable grommet
Curve CM Interface
Specification Drawing Display
(based on PF1025-0800 Rev. 001)
Abbildung 48
120
100
230.8
31
291.8
Dimensions stated in mm
Ceiling-Mounted Dual Display Version 1.0
Inhaltsverzeichnis
loading

Verwandte Produkte für Brainlab Curve ceiling-mounted single display

Diese Anleitung auch für:

Curve ceiling-mounted dual display

Inhaltsverzeichnis