Anmelden
Hochladen
Herunterladen
Inhalt
Inhalt
Zu meinen Handbüchern
Löschen
Teilen
URL dieser Seite:
HTML-Link:
Lesezeichen hinzufügen
Hinzufügen
Handbuch wird automatisch zu "Meine Handbücher" hinzugefügt
Diese Seite drucken
×
Lesezeichen wurde hinzugefügt
×
Zu meinen Handbüchern hinzugefügt
Anleitungen
Marken
Dimplex Anleitungen
Heizgeräte
PERMATHERM
Servicehandbuch
Dimplex PERMATHERM Servicehandbuch Seite 124
Elektro-speicherheizungen
Vorschau ausblenden
1
2
3
Inhalt
4
5
6
7
8
9
10
11
12
13
14
15
16
17
18
19
20
21
22
23
24
25
26
27
28
29
30
31
32
33
34
35
36
37
38
39
40
41
42
43
44
45
46
47
48
49
50
51
52
53
54
55
56
57
58
59
60
61
62
63
64
65
66
67
68
69
70
71
72
73
74
75
76
77
78
79
80
81
82
83
84
85
86
87
88
89
90
91
92
93
94
95
96
97
98
99
100
101
102
103
104
105
106
107
108
109
110
111
112
113
114
115
116
117
118
119
120
121
122
123
124
125
126
127
128
129
130
131
132
133
134
135
136
Seite
von
136
Vorwärts
/
136
Inhalt
Inhaltsverzeichnis
Fehlerbehebung
Lesezeichen
Inhaltsverzeichnis
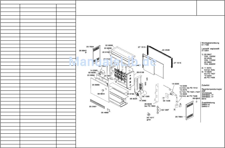
10.4.3.1.
Ident-Nr.
Ersatzteilbezeichnung
02 1297
ZUGENTLASTUNG
03 1336
DREHGRIFF
05 1077
BEGRENZER-TEMPERATUR
05 1585
KLAMMER
05 4669
ABDECKPLATTE
05 8234
MOTOR
05 8235
MOTOR
06 6843
ABDECKUNG
06 6844
ABDECKUNG
11 6374
HALTER
14 0382
MOTOR-LUEFTER
14 0383
MOTOR-LUEFTER
15 0233
REGLER-TEMPERATUR
15 0235
WIDERSTAND
15 0828
ISOLIERTEIL
15 2075
WIDERSTAND
15 3003
WIDERSTAND
15 3004
ISOLIERTEIL
20 0647
HEIZUNG (1333 W)
20 0660
HEIZUNG (2000 W)
20 2567
LUEFTUNGSGITTER
20 4528
DISTANZTEIL
20 4529
HEIZUNG (1733 W)
20 7904
GEHAEUSE-SEITENTEIL
20 8906
DECKEL
20 8984
GEHAEUSE-VORDERTEIL
20 8988
GEHAEUSE-VORDERTEIL
20 9188
ISOLIERTEIL
20 9192
ISOLIERTEIL
20 9639
ISOLIERTEIL
27 0940
KERNBLECH
27 0941
KERNBLECH
27 1515
DISTANZTEIL
28 6028
DICHTUNG
28 6106
ISOLIERTEIL
28 6107
ISOLIERTEIL
31 0351
LACKSTIFT (SEPIAWEIß)
51 7192
M. und G.-ANWEISUNG
Verk.Bez (Typ)
Einsatz in
V02, V05
V04, V07
V03, V06
2NG1060-1T-V01
EST-60G/01 - V08
2NG1640-1T-V02
EST-6040K - V05
2NG1652-1T-V03
EST-6052K - V06
2NG1660-1T-V04
EST-6060K - V07
PERMATHERM
PROTOMATIK
PROTOTHERM
TECLINE
Inhalt
sverzeichnis
Vorherige
Seite
Nächste
Seite
1
...
123
124
125
126
Quicklinks anzeigen
Quicklinks:
Das Aufladeregelungssystem
Protomatik MC 2Nr9 556
Protomatik MC 2Nr9 556-1
Quicklinks ausblenden:
Permanent
Temporär
Abbrechen
Inhaltsverzeichnis
Verwandte Anleitungen für Dimplex PERMATHERM
Heizgeräte Dimplex PLX 050 Montage- Und Gebrauchsanweisung
Wandkonvertor (8 Seiten)
Heizgeräte Dimplex PLX 500 Montageanleitung Und Gebrauchsanweisung
Wandkonvektor (16 Seiten)
Heizgeräte Dimplex PLF 250 TIS Montage- Und Gebrauchsanweisung
(2 Seiten)
Heizgeräte Dimplex TRP 100 M Montage- Und Gebrauchsanweisung
Badezimmer-heizgerät (48 Seiten)
Heizgeräte Dimplex PLX 050E Montage- Und Gebrauchanweisung
(61 Seiten)
Heizgeräte Dimplex PLX 050E Montage- Und Gebrauchsanweisungen
Wandkonvektor (57 Seiten)
Heizgeräte Dimplex PERMATHERM ESS 2012 K Montage- Und Gebrauchsanweisung
Elektro-speicherheizgerät standardbaureihe (24 Seiten)
Heizgeräte Dimplex RCE 100 Montageanleitung
(37 Seiten)
Heizgeräte Dimplex FSR 15...35 GS Montageanleitung Und Bedienungsanleitung
Wärmespeicher quantum classic slim- line design slim- line (40 Seiten)
Heizgeräte Dimplex BS 1201 S Montage- Und Gebrauchsanweisung
Infrarot-strahler (16 Seiten)
Heizgeräte Dimplex EPX 500 Montage- Und Gebrauchsanweisung
Wandkonvektor (16 Seiten)
Heizgeräte Dimplex KSE 050 Montage- Und Gebrauchsanweisung
Wandkonvektor (6 Seiten)
Heizgeräte Dimplex VFDi 20C Montageanleitung
Thermocomfort duo-electronic elektro-speicherheizgerät (32 Seiten)
Heizgeräte Dimplex ThermoComfort duo-electronic FSD 12C Montage- Und Gebrauchsanweisungen
Elektro-speicherheizgerät (40 Seiten)
Heizgeräte Dimplex DKK 100 Montage- Und Gebrauchsanweisung
(8 Seiten)
Heizgeräte Dimplex VFE Serie Installations- Und Bedienungsanleitung
(28 Seiten)
Verwandte Produkte für Dimplex PERMATHERM
Dimplex PLX 050
Dimplex PLX 200
Dimplex PLX 050 TI
Dimplex PLX 300
Dimplex PLX 500
Dimplex PLX 750
Dimplex PLX 2000TI
Dimplex PLX 3000
Dimplex PLX 1000
Dimplex PLX 1500
Dimplex PLX 050E
Dimplex PLX 100E
Dimplex PLX 075E
Dimplex PLX 150E
Dimplex PLX 300E
Dimplex Optimyst PEM20 E
Inhaltsverzeichnis
Drucken
Lesezeichen umbenennen
Lesezeichen löschen?
Möchten Sie es aus Ihren Handbüchern löschen?
Anmelden
Anmelden
ODER
Mit Facebook anmelden
Mit Google anmelden
Anleitung hochladen
Von PC hochladen
Von URL hochladen