Herunterladen Inhalt Inhalt Diese Seite drucken

Rotex HPU hybrid RVLQ05+08CA Referenzhandbuch Seite 105

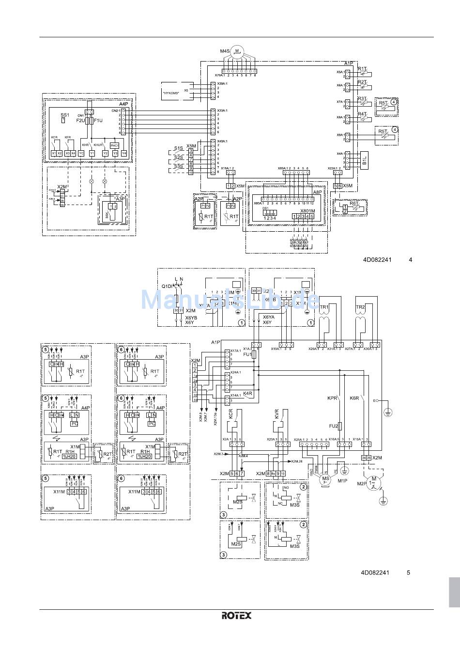
Wärmepumpenmodul und gaskesselmodul
Vorschau ausblenden Andere Handbücher für HPU hybrid RVLQ05+08CA:
Inhaltsverzeichnis
Digitale E/A-Platine
EIN
AUS
Alarmaus-
Ausgang für
gang (*)
Raumheizung
Ein/AUS (*)
nur für Solar-Option
Optionen: Solarpumpenanschluss, Alarmausgang, Ein/AUS-Ausgang
Nur für die Option "Digitale E/A-Platine"
(*)
Max. Last
0,3 A - 250 V Wechselspannung
Min. Last
20 mA - 5 V Gleichspannung
nur für verkabelten Ein/AUS-Thermostat
nur für verkabelten Ein/AUS-Thermostat
Nur für kabellosen
nur für kabellosen
nur für ext.
Ein/AUS-Thermostat
Ein/AUS-Thermostat
Fühler
(Boden oder
Umgebung-
stemperatur)
Wärmepumpenkonvektor
Wärmepumpenkonvektor
Haupt-VLT-Zone
Zusatz-VLT-Zone
RVLQ05+08CAV4 + RHYHBH05AA + RHYHBH/X08AA +
RHYKOMB33AA
ROTEX HPU hybrid
4P355635-1 – 2013.05
GASBOILER
Kontakt des Wärmepumpen-
tarif-Netzanschlusses:16 V
Gleichspannung Demodulation
(Spannung wird durch Platine
geliefert)
Stromzählereingang: 5 V
Gleichspannung - Impuls-
demodulation (Spannung wird
durch Platine geliefert)
Gaszählereingang: 5 V
Gleichspannung - Impuls-
demodulation (Spannung wird
durch Platine geliefert)
Schaltkasten
Benutzer-
Fernbedienung
schnittstelle
Nur für Wärmepumpentarif-Netzanschluss (außen)
Normaltarif-Netzanschluss für Innengerät verwenden
1N~, 50 Hz
230 V Wechsel-
AUSSEN-
spannung
GERÄT
Normaltarif-
Netzanschluss
nur für ext.
Fühler
(Boden oder
Umgebung-
stemperatur)
Absperrventil
EIN
AUS
Zusatz-Platine
Leistungsbegrenzung Digitaleingänge:
12 V Gleichspannung /
12 mA Demodulation
(Spannung wird durch Platine geliefert)
Nur für Zusatz-Platine-Option
Nur für normale Stromversorgung (Standard)
Innengerätstromversorgung durch Außengerät
AUSSEN-
GERÄT
Schaltkasten
3-Kabel-Typ
NO-Ventil
(SPDT)
(normalerweise offen)
3-Kabel-Typ
NC-Ventil (normaler-
weise geschlossen)
(SPST)
Nur für Brauchwasser-
tank (Option)
16 Technische Daten
nur für Brauch-
wassertank (Option)
nur für sofortiges
Warmwasser
(Rückführung)
ohne Speicher
Schaltkasten
Option für ext.
Umgebungs-
sensor (innen
oder außen)
seite
Brauchwasser-
pumpenausgang
Max. Last: 2 A
(Einschaltstrom) -
230 V Wechsel-
spannung
1 A (kontinuierlich)
seite
Referenzhandbuch für den Monteur
105
Inhaltsverzeichnis
loading

Inhaltsverzeichnis