Herunterladen Inhalt Inhalt Diese Seite drucken

Maßbilder - Sick Detec2 Core Betriebsanleitung

Vorschau ausblenden Andere Handbücher für deTec2 Core:
Inhaltsverzeichnis
12.5
Maßbilder
8014275/2014-02-18 | SICK
Irrtümer und Änderungen vorbehalten
29,5
30,7
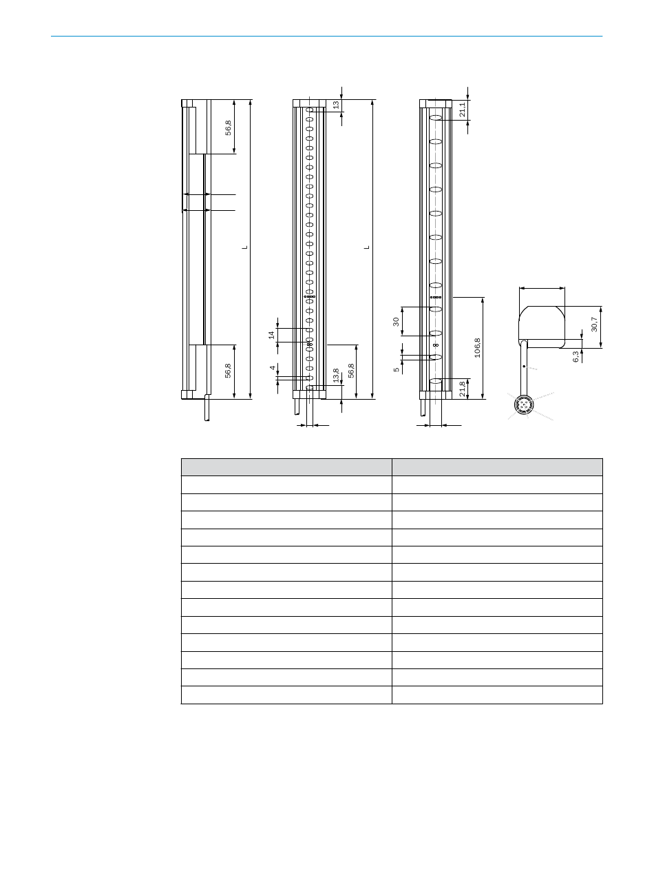
Abbildung 31: Maßbild Sender und Empfänger
Schutzfeldhöhe, nominell [mm]
300
450
600
750
900
1050
1200
1350
1500
1650
1800
1950
2100
Tabelle 13: Von der Schutzfeldhöhe abhängige Maße Sender und Empfänger
1
Das effektive Schutzfeld entspricht der gesamten Gehäuselänge. Der in der Norm IEC 61496-1 festgeleg‐
te Prüfkörper wird über die gesamte Gehäuselänge erkannt. Die Grenzen des Schutzfelds sind identisch
mit den Enden des Gehäuses.
7
Schutzfeldhöhe, effektiv = Maß L [mm]
313
463
613
763
913
1063
1213
1362
1512
1662
1812
1962
2112
B E T R I E B S A N L E I T U N G | deTec2 Core
TECHNISCHE DATEN
34
L=150
1
4
12
2
5
3
1
12
53
Inhaltsverzeichnis
loading

Inhaltsverzeichnis