Herunterladen Inhalt Inhalt Diese Seite drucken

Elektrischer Anschluss - Dimplex Wi 40Cs Montage- Und Gebrauchsanweisungen

Inhaltsverzeichnis

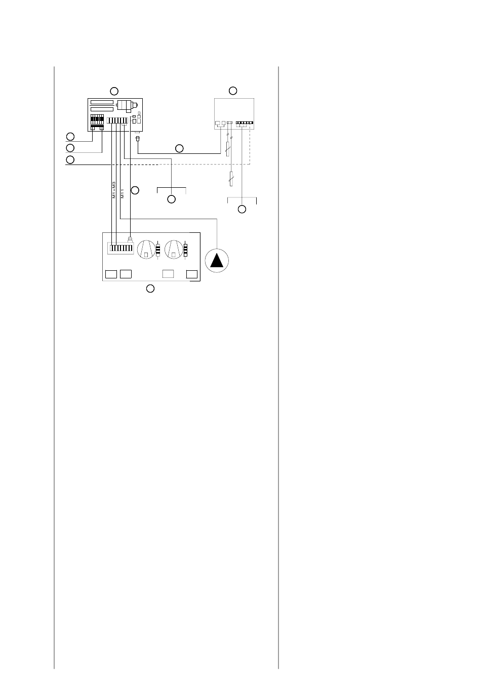
7.3 Elektrischer Anschluss

4
7
8
6
2
M1
E1
WS
T>
F4
F5
P
P
1
1
Wärmepumpe
2
Steuerleitung (Zubehör)
3
Wärmepumpenregler
4
Basissteuerung
5
Peripherie
6
Steuerstrom L/N/PE 230 V AC
7
Laststrom 3/PE 400 V AC
8
Laststrom Brunnenpumpe 3/PE 400 V AC
Alle für die Leistungsversorgung der Wärme-
pumpe notwendigen Bauteile befinden sich in der
Basissteuerung. Die Basissteuerung wird im
Haus auf einer ebenen Wand montiert. Für die
Ansteuerung dieser Bauteile wird ein Wärme-
pumpenregler benötigt. Die Verbindung der Ein-
zelkomponenten Basissteuerung und Wärme-
pumpenregler muss bauseits durchgeführt wer-
den (Steckverbinder).
Leistungszuführung zur Basissteuerung
In der Leistungszuführung zur Basissteuerung
für die Wärmepumpe ist eine allpolige Abschal-
tung mit mindestens 3 mm Kontaktöffnungsab-
stand (z.B. EVU-Sperrschütz, Leistungsschütz),
sowie ein 3-pol. Sicherungsautomat, mit gemein-
samer Auslösung aller Außenleiter vorzusehen.
Der benötigte Querschnitt der Leitung ist gemäß
der Leistungsaufnahme der Wärmepumpe, der
techn. Anschlussbedingungen des jeweiligen
EVU und nach VDE 0100, zu wählen. Die
Leistungsaufnahme der Wärmepumpe ist in den
technischen Unterlagen aufgeführt. Die An-
schlussklemmen (X1-L1/L2/L3 an den Siche-
rungsautomaten) sind für max. 16 mm² ausge-
legt.
3
N1
2
R2
R1
5
5
M3
E2
WS
T>
F6
F10
T
F
M11
Für den Anschluss der Brunnenpumpe muss ge-
währleistet sein, dass die Spannungsversorgung
für diese Klemmen nicht vom Tarifschütz abge-
schalten werden kann, um die Abschaltverzöge-
rung der Brunnenpumpe zu gewährleisten. Der
werkseitig eingebaute Motorschutz ist entspre-
chend der Daten des Pumpenherstellers einzu-
stellen. Die Anschlussklemmen der Brunnen-
pumpeneinspeisung sind X1-L11/L21/L31.
Steuerspannung
Die Basissteuerung wird vom Wärmepumpen-
regler über die Steuerleitung versorgt. Eine ex-
tra Leitung in die Basissteuerung ist nicht nötig.
Leistungsverbindung zwischen der Basis-
steuerung und dem Anschlusskasten der
Wärmepumpe
Die Verbindungen zwischen dem Klemmkasten
in der Wärmepumpe und der Basissteuerung,
sowie zwischen der Brunnenpumpe und der
Basissteuerung sind bauseits zu erstellen.
Für die Leistungskabel sind die Querschnitte
entsprechend der Leistungsaufnahme der Wär-
mepumpe (technische Daten) sowie der Leis-
tungsaufnahme der verwendeten Brunnen-
pumpe zu wählen.
Die Leistungskabel werden in das verlegte
Kunststoffrohr eingezogen.
Anschlussklemmen Verdichter:
X1-1/2/3/PE
X1-4/5/6/PE
Anschlussklemmen Brunnenpumpe:
X1-7/8/9/PE
7
MONTAGE
Inhaltsverzeichnis
loading

Diese Anleitung auch für:

Wi 90cs

Inhaltsverzeichnis