Herunterladen Inhalt Inhalt Diese Seite drucken

Unical MODULEX EXT 348 Bedienungsanleitung Seite 52

Inhaltsverzeichnis
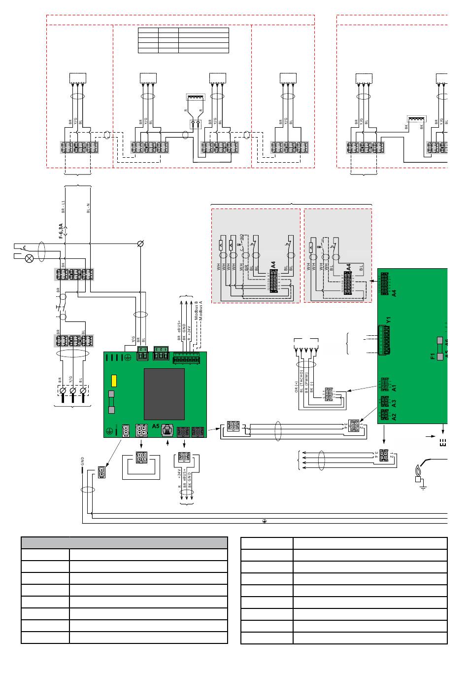
4.2 - sCHALTPLAN FüR ELEKTROANsCHLUss
EXT 100 ÷ 350
1° Mod.
VM (A)
ST1
1
2 3
BR
BL
(MV1)
sTROMV.GEBL.
ALIM. VENT.
BR
2
BK
C
1
R
1a
1b
(M2)
Y G /
IG2
1N
4L
IG
2N
5L
IG1
(M1)
sTROMV.GEBL.
ALIM.
230 V - 50 Hz
A2
1
2
lEGENDE
E. SPEICH.
Zündelektrode
E. RIl.
Messelektrode
HSCP / Ufly temperaturregelung
SR
Heiztemperaturfühler (nur 1. Modell)
SR 1...7
lokaler Heiztemperaturfühler
PF
Druckwächter Rauchgasdruck (nur 1. Mod.)
PF min
Druckwächter Mindest-Rauchgasdruck (nur 1. Mod.)
Sl
kondenswasserstandsensor (2. Mod.)
52
sTROMV.GEBL.
ALIM. VENT.
POsITION ZwIsCHEN MOD.
N° MOD.
FILTER
POSITION BETWEEN MOD.
4
1
5
2
6
2
7
3
2-3/4-5/6-7
VM (A)
ST1
1
2 3
FILTER
BR
BL
(M3)
Ufly
3 2
1
Y1
Y2
F1
A2
A1
A4
A3
A1
Ufly
A4
1
1
2
2
3
4
3
4
BL
BR
1
3
2
BCM
2-3
2-3/4-5
Zwischenmodul /
intermediate /
2-3/4-5
Letztes Modul
last module
VM (A)
VM (A)
ST1
ST1
1
2 3
1
2 3
BR
BL
(*) EXT 100 ÷ 350
PF
min TL
SR
S 1
R
T 1
L
MOD. 1
PF
min.
nuR
ONLY
AuStRALIEn
AUSTRALIA
Y3
A3
BL
1
2
BR
3
4
BK
OR +24V
A2/A3-A2/A3
BMM 2-7/8
BR
L1
BL
N
Y G /
t. SPEICH
tl
tl 1....7
VG
VM (A)
VM (R)
SRR
DWG
IG
EXT 440 ÷ 900
VM (A)
ST1
1
2 3
(MV1)
sTROMV.GEBL.
ALIM. VENT.
PF
SR
TL
min
2-7
2-7
MOD. 2 - 7
PF
min.
nuR
ONLY
AuStRALIEn
AUSTRALIA
VM (R)
1 - 7 / 8
eBUS +
MOD. 1
eBUS
KIT SHC
ST2
(+24 V only
(+24 V nur
1
2 3 4 5
for 1 SHC)
für 1 sHC)
+ 24 V
A1
A3
XWDC
+eBUS
GND
A2
BL
XWDC
3
BR
+eBUS
4
BK
GND
2
OR +24V
1
Zündtransformation
Grenzwertthermostat
Grenzwertthermostat lokal
Gasventil
Stromversorgung Modulationsgebläse
Mess./Regelung modulierendes Gebläse
Rücklaufsensor global
Druckwächter Gas
Hauptschalter
sTRO
ALIM. VENT.
VM (A)
ST1
1
2 3
FILTER
BL
BMM
PHS
PIN 1
1-2:PHASE NICHt SENS.
1-2: F ASE
H
NOT SENS.
2-3:PHASE SENSIB.
2-3: F ASE SENSIB
H
.
TEFLON WH
E.RIL.
1-7/8
Inhaltsverzeichnis
loading

Inhaltsverzeichnis