Herunterladen Inhalt Inhalt Diese Seite drucken

Fermax DIGITAL Bedienungsanleitung Seite 57

Inhaltsverzeichnis
Verfügbare Sprachen

Verfügbare Sprachen

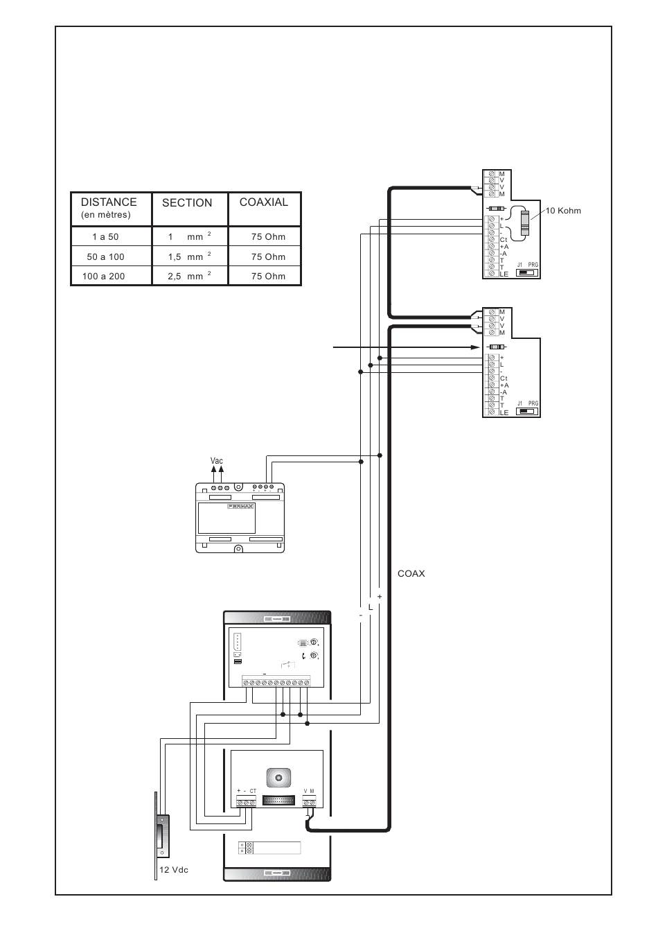
Dans les installations où la distance entre la platine et le moniteur le plus éloigné
ne dépasse pas 40 m, le câble en bleu sur le schéma n'est pas obligatoire.
Dans les installations avec bifurcations, placer une résistance de 10 Kohms entre
les terminaux "+" y "L" du dernier moniteur.
Un sachet de 5 résistances est fourni avec le kit.
Câblage du KIT DIGITAL FERMAX 2/L RÉF. 6034
C O U P E R C E T T E
RÉSISTANCE
EXT.
PLAC
INT.
TELEFONO
JP2
Ct L
C
Nc
-
+
S
B
B
No
+12
Pag 57

Quicklinks ausblenden:

Inhaltsverzeichnis
loading

Inhaltsverzeichnis