Herunterladen Inhalt Inhalt Diese Seite drucken

Jacuzzi DESIGN COLLECTION DELOS Vorinstallationsblatt Seite 2

Inhaltsverzeichnis
Verfügbare Sprachen
  • DE

Verfügbare Sprachen

  • DEUTSCH, seite 22
Italiano
......................................................................
English
.......................................................................
Français
...................................................................
Avvertenze
• Tutte le misure sono espresse in centimetri
• I disegni riportati non sono in scala
• Tolleranza dimensionale e/o di rettilineità: ± ~ 13 mm
• Dimensioni e specifiche soggette a modifiche senza preavviso
Warning
• All measures are in centimetres
• The show drawings are not scaled
• Tolleranza dimensionale e/o di rettilineità: ± ~ 13 mm
• Dimensions and specifications subject to change without no-
tice
Avertissements
• Toutes les mesures sont exprimées en centimètres
• Les dessins reportés ne sont pas à l'échelle
• Tolérance dimensionnelle et/ou de rectitude : ± ~ 13 mm
• Dimensions et caractéristiques sujettes à des modifications
sans préavis
1
10
14
18
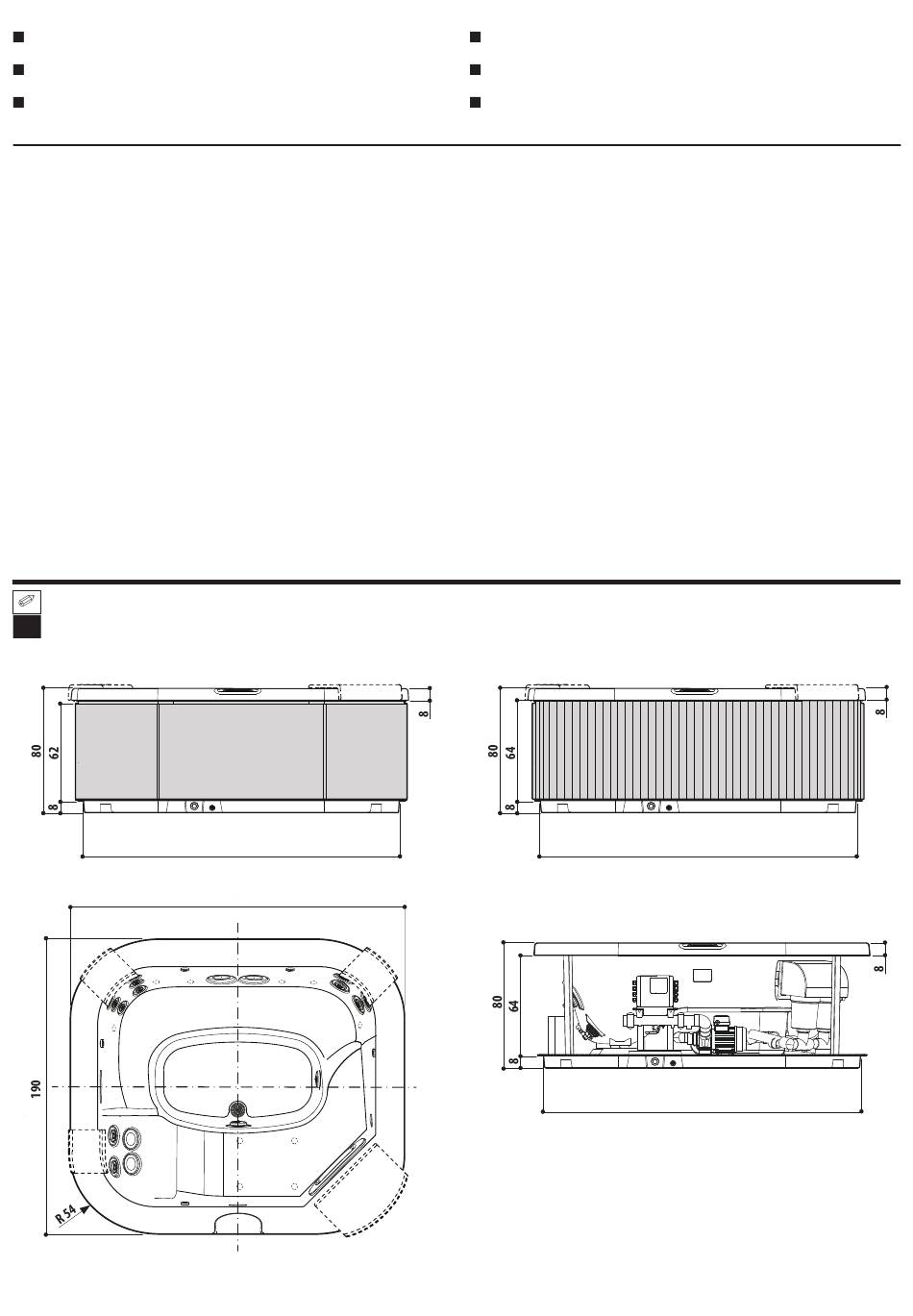
DELOS
204 x 179
215
Deutsch
....................................................................
Español
.....................................................................
Русский
...................................................................
Warnung
• Sämtliche Maßangaben in cm
• Die Zeichnungen sind nicht im Maßsta b
• Maß-/Rechtwinkligkeitsabweichung: ± ~ 13 mm
• Größen und technische Eigenschaften können ohne Vorankün-
digung verändert werden
Advertencias
• Todas las medidas vienen en centímetros
• Los dibujos representados no son en escala
• Tolerancia dimensional y/o de rectilineidad: ± ~ 13 mm
• Dimensiones y características sujetas a modificaciones sin pre-
vio aviso
Предупреждения
• Все размеры указаны в миллиметрах
• Рисунки приведены не в масштабе
• Размерный допуск и/или прямолинейности: ± ~ 13 мм
• Размеры и технические характеристики могут изменяться
без предварительного предупреждения
DELOS
DELOS
2
22
26
30
synthetic wood
204 x 179
204 x 179
built-in
Inhaltsverzeichnis
loading

Inhaltsverzeichnis