Herunterladen Inhalt Inhalt Diese Seite drucken

Anschluss Des Ein- Und Ausgangs Für Die Muting-Funktion (Zwei Sensorgruppen); Anschluss Des Voralarmausgangs - Inxpect Lbk System Betriebsanleitung

Vorschau ausblenden Andere Handbücher für LBK System:
Inhaltsverzeichnis
9.  Technische Spezifikationen
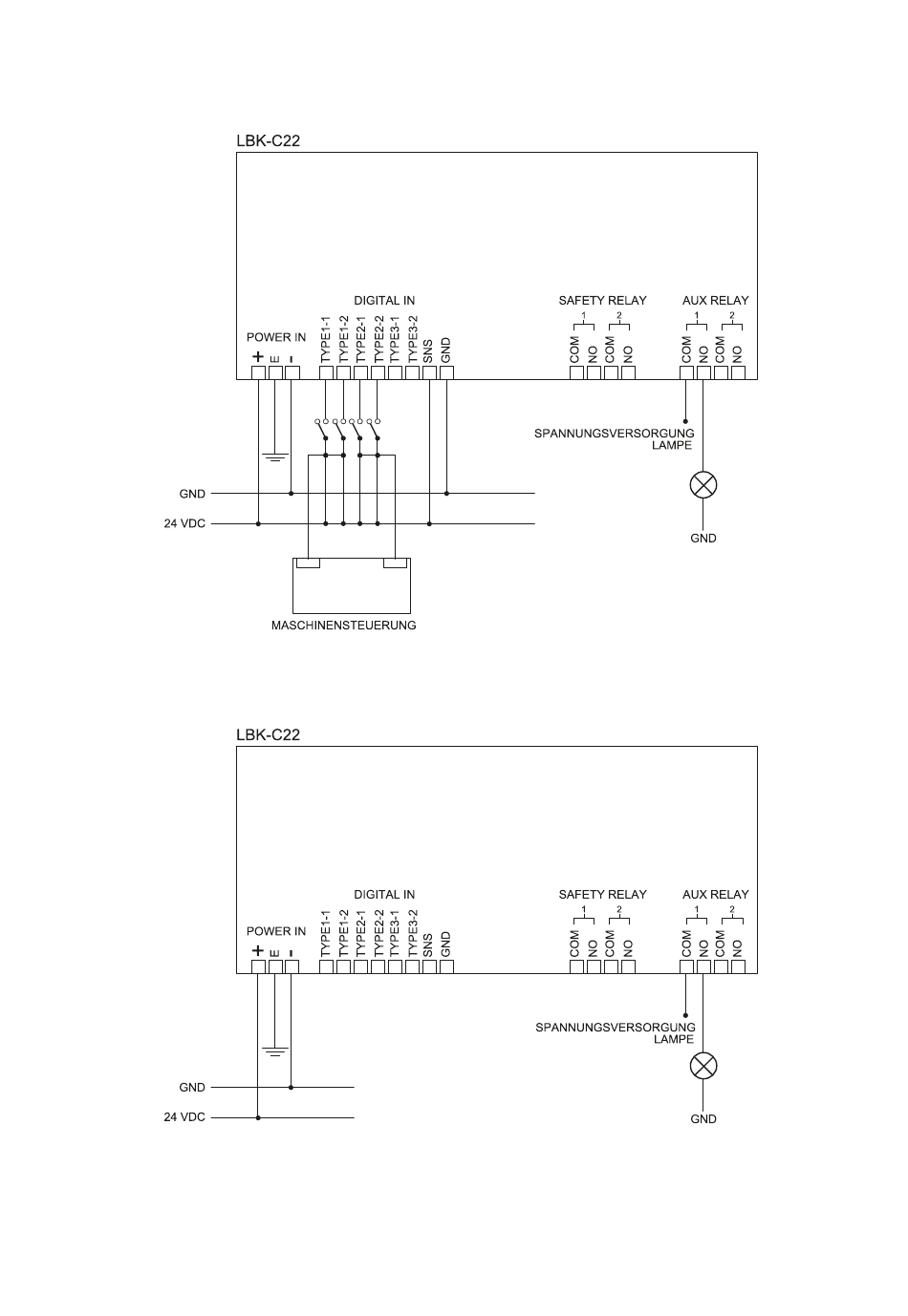
9.3.6 Anschluss des Ein- und Ausgangs für die Muting-Funktion (zwei
Sensorgruppen)
Info: Die für die Verkabelung der Digitaleingänge verwendeten Kabel dürfen max. 30 m lang sein.

9.3.7 Anschluss des Voralarmausgangs

71
LBK System | Betriebsanleitung v1.3 SEP 2019 | LBK-System_instructions_de v1.3 | © 2018-2019 Inxpect SpA
Inhaltsverzeichnis
loading

Inhaltsverzeichnis