Herunterladen Inhalt Inhalt Diese Seite drucken

EdilKamin FORMA Installations-, Betriebs- Und Wartungsanleitung Seite 61

Vorschau ausblenden Andere Handbücher für FORMA:
Inhaltsverzeichnis
Verfügbare Sprachen
  • DE

Verfügbare Sprachen

  • DEUTSCH, seite 78
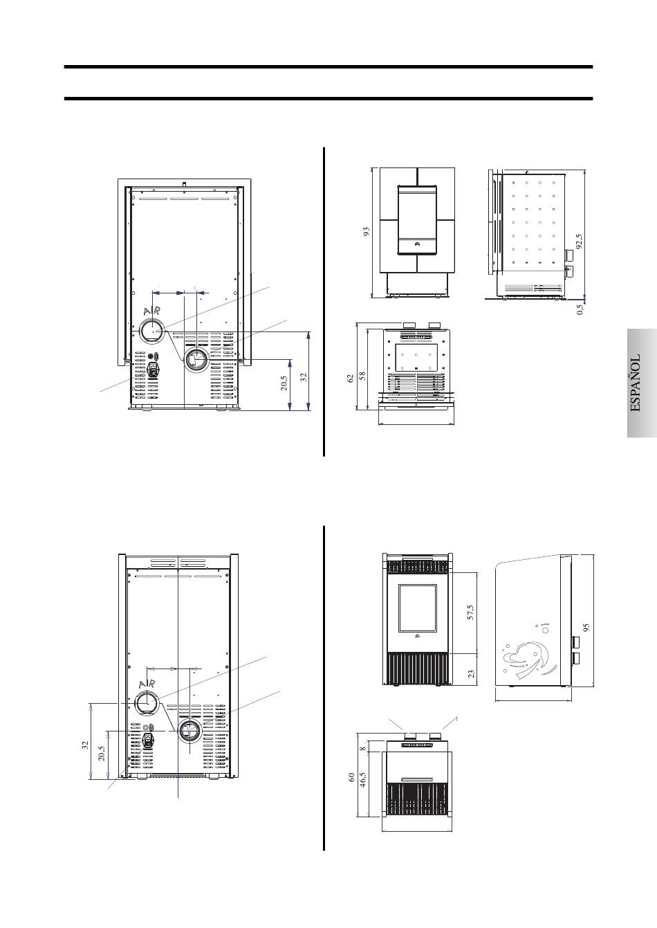
DIMENSIONES Y ACABADOS
FORMA: revestimiento de cerámica marfil efecto madera
VISTA POSTERIOR
13
5
Conexión
para toma
en serie
Rs232
TWIN : revestimiento en estonelita marrón claro
VISTA POSTERIOR
13
5
Conexión
para toma
en serie
Rs232
Aire combustión
80 mm Ø
Salida humos
80 mm Ø
Aire combustión
80 mm Ø
Salida humos
80 mm Ø
Salida humos
80 mm Ø
61
54
54,5
Aire combustión
80 mm Ø
50
Inhaltsverzeichnis
loading

Diese Anleitung auch für:

Twin

Inhaltsverzeichnis