Herunterladen Inhalt Inhalt Diese Seite drucken

Knoten-Verkabelung; Sata- Und Mini-Sas-Verkabelung - Hpe Apollo 2000 System Benutzerhandbuch

Inhaltsverzeichnis

Knoten-Verkabelung

SATA- und Mini-SAS-Verkabelung

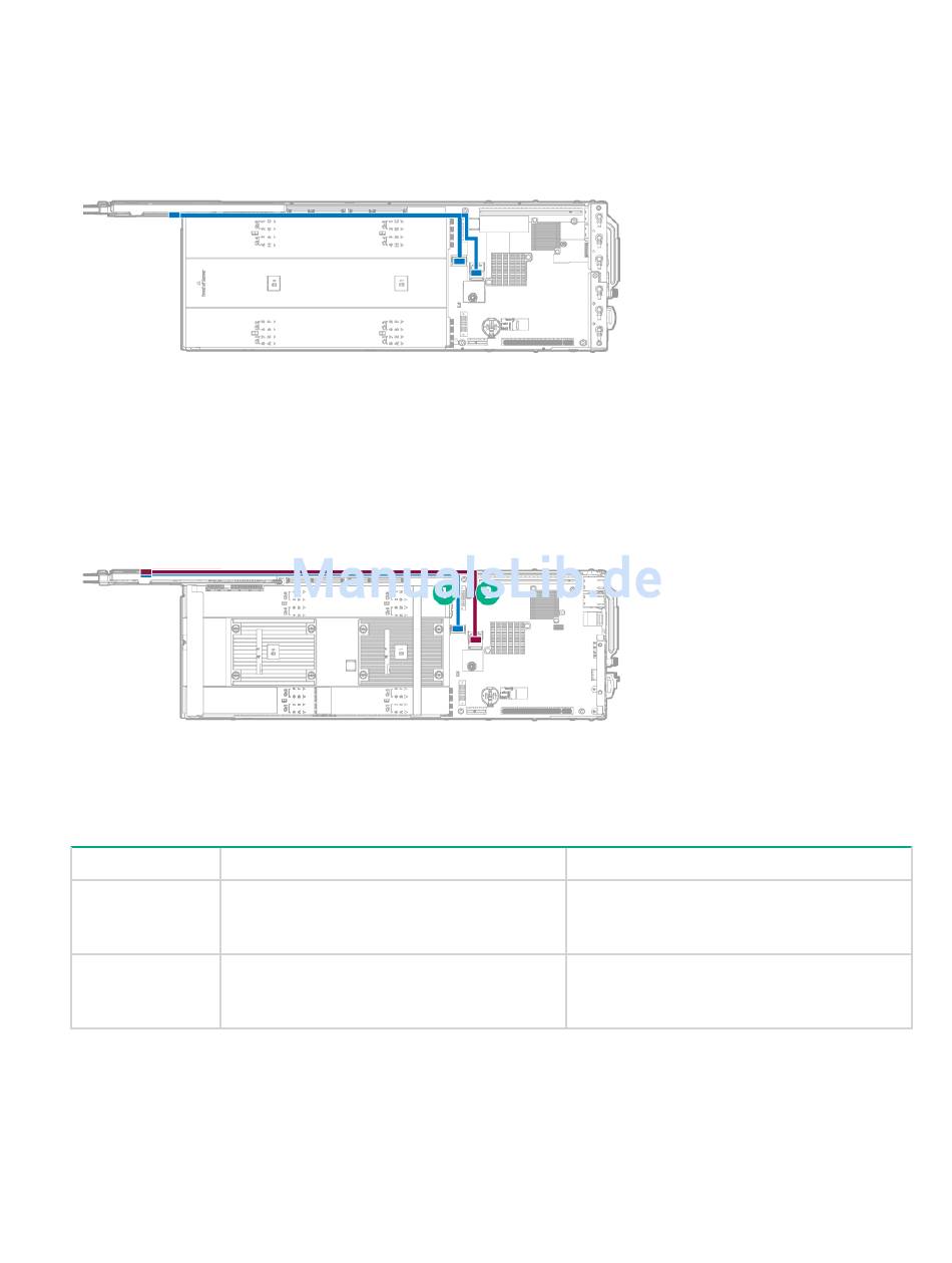
B140i-1U-Knoten-SATA-Verkabelung
B140i-2U-Knoten-SATA-Verkabelung
Element
1
2
170
Knoten-Verkabelung
Beschreibung
SATA 1-Kabel
SATA 2-Kabel
Verbindung
Mini-SAS-Anschluss 1 (SATA x4) auf der
Systemplatine zu Port 1 auf der Bajonett-
Platine
Mini-SAS-Anschluss 2 (SATA x4) auf der
Systemplatine zu Port 2 auf der Bajonett-
Platine
Inhaltsverzeichnis
loading

Inhaltsverzeichnis