Herunterladen Inhalt Inhalt Diese Seite drucken

Schéma De Câblage 3~ 400/230V 50 Hz - Badu Jet Turbo Pro Originalbetriebsanleitug

Einbau-gegenstromanlage
Vorschau ausblenden Andere Handbücher für JET Turbo Pro:
Inhaltsverzeichnis
Verfügbare Sprachen
  • DE

Verfügbare Sprachen

  • DEUTSCH, seite 4
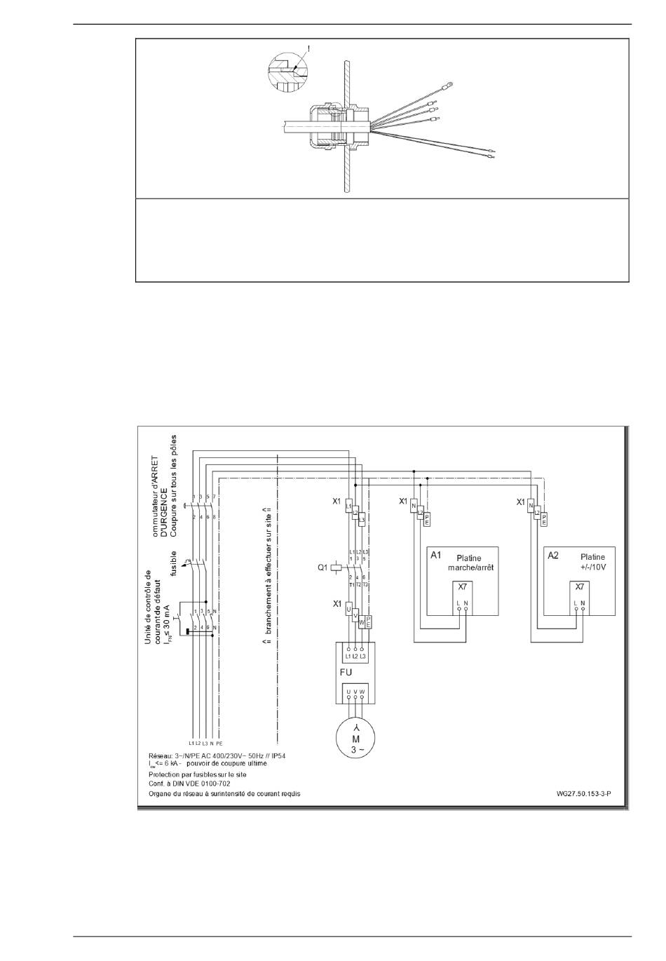
15. Après la fin du câblage, fermer puis serrer à fond le raccord
vissé CEM. Veiller à ce que les ergots sur la pièce en
plastique s'enclenchent dans les rainures. La pièce en
plastique n'est auparavant pas fermement fixée.
Retirer le capuchon de transport et le joint torique de la fiche
du moteur.
La fiche du moteur peut être tournée.
La liaison entre le câble et le moteur s'effectue à l'aide d'une
fermeture à baïonnette.
5.4.6
Schéma de câblage 3~ 400/230V 50 Hz
Fig. 19
08|2020
Installation
FR 39
Inhaltsverzeichnis
loading

Inhaltsverzeichnis