Herunterladen Inhalt Inhalt Diese Seite drucken

Componentes Principales De La Caja De Conexiones - Rotex Rkhbh016Bb3V3 Installationsanleitung

Inneneinheit fuer luft-wasser-wärmepumpensystem
Vorschau ausblenden Andere Handbücher für RKHBH016BB3V3:
Inhaltsverzeichnis
Verfügbare Sprachen
  • DE

Verfügbare Sprachen

  • DEUTSCH, seite 3
1.
Válvula de purga de aire
El aire que quede retenido en el circuito de agua se eliminará
automáticamente a través de la válvula de purga de aire.
2.
Calefactor auxiliar
El calefactor auxiliar consta de un elemento calefactor eléctrico
en el calefactor auxiliar que proporciona una capacidad de
calefacción adicional al circuito de agua si la capacidad de
calefacción de la unidad exterior es insuficiente debido a las
bajas temperaturas exteriores.
3.
Sensores de temperatura
Tres sensores de temperatura determinan la temperatura del
agua en varios puntos del circuito del agua.
4.
Caja de conexiones
La caja de interruptores alberga los componentes electrónicos
y eléctricos de la unidad interior.
5.
Intercambiador de calor
6.
Recipiente de expansión (10 l)
7.
Interfaz de usuario
La interfaz de usuario permite al instalador y al usuario ajustar,
operar y realizar las tareas de mantenimiento de la unidad.
8.
Conexión del líquido refrigerante
9.
Conexión del gas refrigerante
10. Válvulas de cierre (accesorios)
Las válvulas de cierre de las conexiones de entrada y de salida
del agua permiten aislar el lado del circuito de agua de la unidad
interior del lado del circuito de agua residencial. Esto facilita el
drenaje y la sustitución del filtro de la unidad interior.
11. Conexión para la entrada del agua
12. Conexión para la salida del agua
13. Válvulas de drenaje y de llenado
14. Filtro de agua
El filtro de agua elimina la suciedad del agua para impedir que
se produzcan daños en la bomba o evitar atascos en el
evaporador. El filtro de agua deberá limpiarse regularmente.
Consulte "10. Mantenimiento y servicio técnico" en la página 47.
15. Manómetro
Mediante el manómetro es posible leer la presión del agua que
circula por el circuito de agua.
16. Interruptor de caudal
El interruptor de flujo controla el caudal del circuito de agua
y protege al intercambiador de calor frente a la congelación
e impide que la bomba sufra daños.
17. Bomba
La bomba hace circular el agua por el circuito de agua.
18. Protector térmico del calefactor auxiliar
El calefactor auxiliar está equipado con una protección térmica.
La protección térmica se activa cuando la temperatura es
demasiado alta.
19. Fusible térmico del calefactor auxiliar
El calefactor auxiliar está equipado con un fusible térmico. La
protección térmica salta cuando la temperatura asciende de
forma excesiva (más alta que la temperatura del protector
térmico del calefactor auxiliar).
20. Válvula de alivio de presión
La válvula de alivio de presión impide que la presión del agua
supere el nivel máximo admisible en el circuito de agua del
sistema abriéndose a 3 bares y descargando un poco de agua.
21. Tubo flexible de la válvula de alivio de presión
La salida real de la válvula de alivio de presión. Asegúrese de
proporcionar un drenaje adecuado.
Manual de instalación
11
All manuals and user guides at all-guides.com
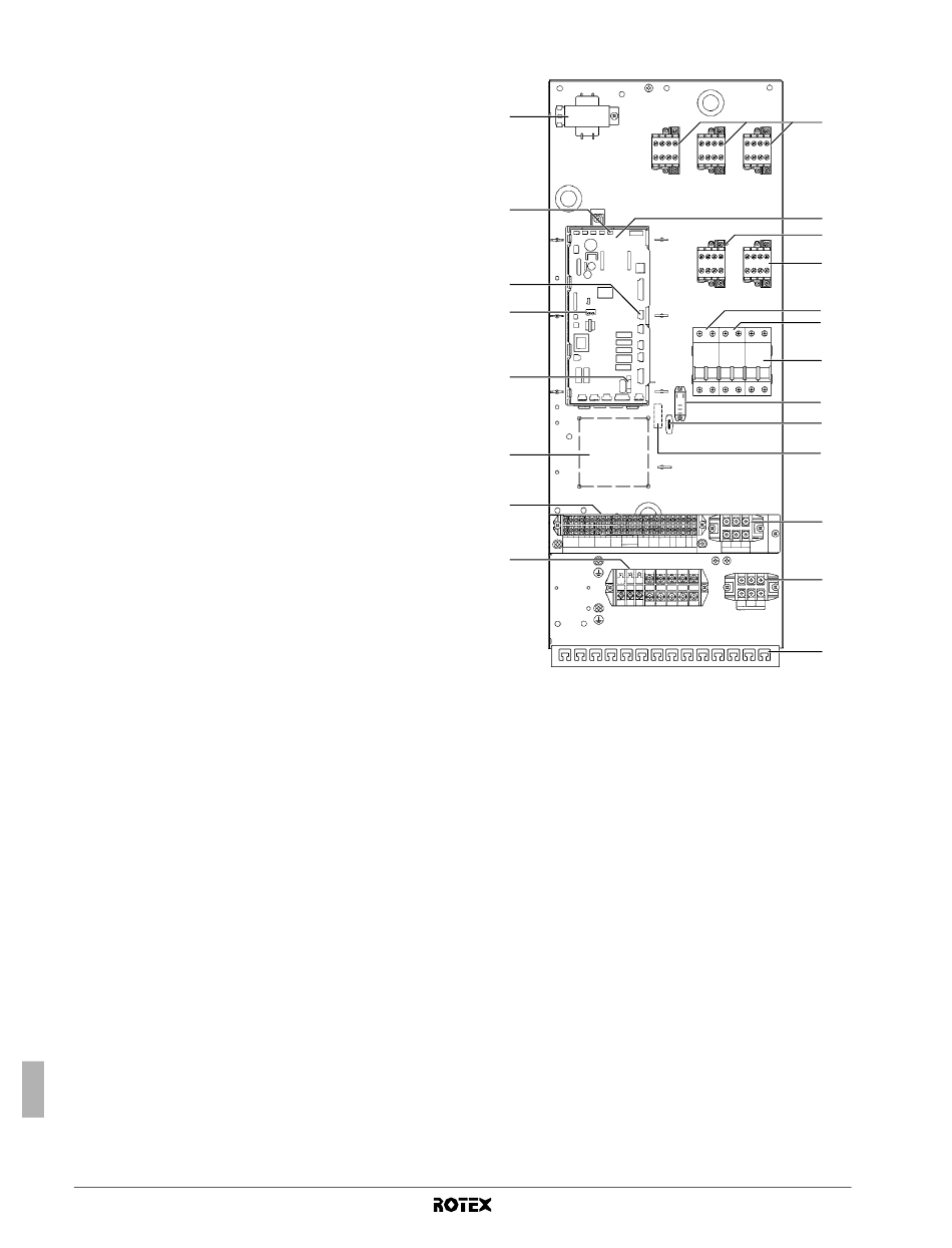
5.3. Componentes principales de la caja de
15
12
11
10
16
1.
2.
3.
4.
5.
6.
7.
8.
9.
10. Interruptor DIP SS2
conexiones
TR1
K1M
X9A
A1P
X13A
SS2
FU1
9
K4M
A4P
6
X2M
6
X1M
Contactores del calefactor auxiliar K1M, K2M, K5M y K6M.
Tarjeta de circuito impreso principal (PCB)
La tarjeta de circuito impreso principal controla el funcionamiento
de la unidad.
Contactor K3M del calefactor (sólo para instalaciones con
depósito de agua caliente sanitaria)
Disyuntor de la resistencia eléctrica F2B (sólo para instalaciones
con depósito de agua caliente sanitaria)
Este disyuntor protege la resistencia eléctrica del depósito de
agua caliente sanitaria frente a sobrecargas o cortocircuitos.
Disyuntor del calefactor auxiliar F1B, B3B
El disyuntor protege el circuito eléctrico del calefactor auxiliar
frente a sobrecargas o cortocircuitos.
Bloques de terminales
Los bloques de terminales permiten conectar el cableado de
obra con facilidad.
Sujetacables
Los sujetacables permiten fijar el cableado de obra a la caja de
conexiones mediante sujetacables para asegurar el alivio de
tracción de los cables.
Bloques de terminales X3M, X4M (sólo para instalaciones con
depósito de agua caliente sanitaria)
Fusible, tarjeta PCB FU1
El interruptor DIP SS2 está provisto de 4 interruptores
selectores para configurar determinados parámetros de
instalación. Consulte "8.1. Descripción general de los ajustes
del interruptor DIP" en la página 23.
Unidad interior para sistema de bomba de calor de aire-agua
1
K2M
K5M
2
3
1
K3M
K6M
4
5
F2B
F3B
F1B
5
14
FU2
13
17
X4M
8
8
X3M
7
RKHBH/X016BB
4PW62576-2 – 10.2010
Inhaltsverzeichnis
loading

Inhaltsverzeichnis