Anmelden
Hochladen
Herunterladen
Inhalt
Inhalt
Zu meinen Handbüchern
Löschen
Teilen
URL dieser Seite:
HTML-Link:
Lesezeichen hinzufügen
Hinzufügen
Handbuch wird automatisch zu "Meine Handbücher" hinzugefügt
Diese Seite drucken
×
Lesezeichen wurde hinzugefügt
×
Zu meinen Handbüchern hinzugefügt
Anleitungen
Marken
Graf Anleitungen
Wassersysteme
grey2clean
Anleitung für den einbau
Abmessungen - Graf Grey2Clean Anleitung Für Den Einbau
Grauwasseranlage
Vorschau ausblenden
1
Inhalt
2
3
4
5
6
7
8
9
10
11
12
13
14
15
16
17
18
19
20
21
22
23
24
25
26
27
28
29
30
31
32
33
34
35
36
37
38
39
40
41
42
43
44
45
46
47
48
49
50
51
52
53
54
55
56
Seite
von
56
Vorwärts
/
56
Inhalt
Inhaltsverzeichnis
Lesezeichen
Inhaltsverzeichnis
Verfügbare Sprachen
DE
EN
FR
ES
Mehr
Verfügbare Sprachen
DEUTSCH, seite 1
ENGLISH, page 15
FRANÇAIS, page 28
ESPAÑOL, página 41
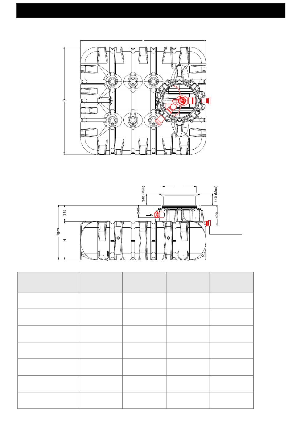
2. Abmessungen
Bemessungsgröße
Tank
Art.-Nr.
Gewicht
L
B
H
*Hges
2. Abmessungen
L
DN110
380 l/d
760 l/d
1500 L
3000 L
390000
390001
82 kg
180 kg
2100 mm
2450 mm
1250 mm
2100 mm
700 mm
735 mm
1015 mm
1050 mm
Ø650
1270 l/d
5000 L
390002
250 kg
2890 mm
2300 mm
1000 mm
1315 mm
3 / 52
DN110 / DN75
1900 l/d
7500 L
390005
380 kg
3600 mm
2250 mm
1250 mm
1565 mm
Inhalt
sverzeichnis
Vorherige
Seite
Nächste
Seite
1
2
3
4
5
6
7
8
Inhaltsverzeichnis
Verwandte Anleitungen für Graf grey2clean
Wassersysteme Graf SILENTIO 15/4 Einbauanweisungen
Trinkwasser- nachspeisung (12 Seiten)
Wassersysteme Graf SICKER-TUNNEL 300 L Anleitung
(6 Seiten)
Wassersysteme Graf SICKER-BLOC COMPACT 300 Anleitung
(44 Seiten)
Wassersysteme Graf Klaro Easy Einbauanleitung
(20 Seiten)
Wassersysteme Graf one2clean Einbauanleitung
Mehrbehälteranlage, rüstsatz 7 ew / 10 ew / 14 ew / 18 ew (80 Seiten)
Wassersysteme Graf SILENTIO 15/4 Anleitung Für Einbau Und Wartung
Trinkwassernachspeisung (60 Seiten)
Wassersysteme Graf 330299 Anleitung
(4 Seiten)
Wassersysteme Graf Aqua-Center Basic 15/4 Anleitung Für Einbau Und Wartung
Trinkwasser-nachspeisemodul (64 Seiten)
Wassersysteme Graf 350021 Bedienungsanleitung
(36 Seiten)
Wassersysteme Graf KLAROcontrol.S Bedienungsanleitung
(72 Seiten)
Wassersysteme Graf Vario 800 Anleitung Für Den Einbau
Löschwasserentnahmeschacht (17 Seiten)
Wassersysteme Graf ECOBLOC INSPECT 420 Anleitung Für Den Einbau
(72 Seiten)
Wassersysteme Graf 1000L Anleitung
(37 Seiten)
Wassersysteme Graf 375119 Montageanleitung
Einbauanleitung wasseranschlussbox intern (2 Seiten)
Verwandte Inhalte für Graf grey2clean
Cristall 1600 L Abmessungen Und Gewicht: Abmessungen
Graf Cristall 1600 L
Aqua-Center Basic 15/4 Abmessungen Und Gewicht
Graf Aqua-Center Basic 15/4
SILENTIO 15/4 Abmessungen Und Gewicht
Graf SILENTIO 15/4
ECOBLOC INSPECT 420 Abmessungen Der Baugrube
Graf ECOBLOC INSPECT 420
EcoBloc Inspect smart Abmessungen Der Baugrube
Graf EcoBloc Inspect smart
350021 Abmessungen Und Gewicht
Graf 350021
SICKER-TUNNEL 300 L Abmessungen Der Baugrube
Klaro Easy Abmessungen
Graf Klaro Easy
SICKER-BLOC COMPACT 300 Abmessungen Der Baugrube
Graf SICKER-BLOC COMPACT 300
SILENTIO 15/4 Abmessungen Und Gewicht
Graf SILENTIO 15/4
Inhaltsverzeichnis
Drucken
Lesezeichen umbenennen
Lesezeichen löschen?
Möchten Sie es aus Ihren Handbüchern löschen?
Anmelden
Anmelden
ODER
Mit Facebook anmelden
Mit Google anmelden
Anleitung hochladen
Von PC hochladen
Von URL hochladen