Herunterladen Inhalt Inhalt Diese Seite drucken

Standardkonfiguration - Socomec Netys Rt 5000Va Installations- Und Bedienungsanleitung

Vorschau ausblenden Andere Handbücher für NETYS RT 5000VA:
Inhaltsverzeichnis
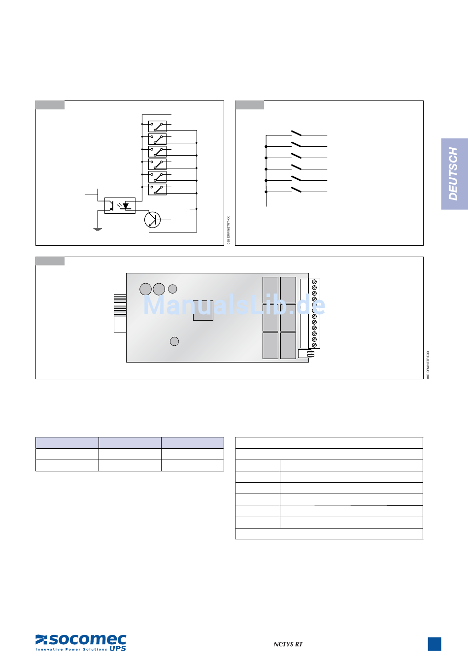
10.4.1 Innerer Stromkreis
10.4.1-1
+5V
CPU Pin
10.4.1-3
10.4.2 Standardkonfi guration
SW1
SW2
AUS
AUS
EIN
AUS
10.4.1-2
Common
R1
R2
R3
R4
R5
R6
GND-R
GND-R:
Input
Relaiskontakt
GND-R: Relais-Erdschluss
NO
Common: 12~24 V DC
NC
R1
R2
R3
R4
R5
R6
Eingang: Fernabschaltung oder Batterietest
10. KOMMUNIKATION
R1 Allgemeiner Alarm
R2 Kein Hauptnetz
R3 Batterie schwach
R4 Betrieb über Bypass
R5 Überlast
R6 Übertemperatur
GND-R
Common
R1
R2
R3
R4
R5
R6
Input
Tx
Rx
GND-C
SW1
SW2
Allgemeiner Alarm
Kein Hauptnetz
Batterie schwach
Betrieb über Bypass
Überlast
Übertemperatur
5-11 kVA - Ref.: IOMNETRTXX01-DE 06
35
Inhaltsverzeichnis
loading

Inhaltsverzeichnis