Herunterladen Inhalt Inhalt Diese Seite drucken

Verdrahtung - System Sensor Fl0111E-Hs Kurzanleitung Zur Installation

Stand alone/glt faast lt-200-modelle
Vorschau ausblenden Andere Handbücher für FL0111E-HS:
Inhaltsverzeichnis
3
5
WICHTIGE HINWEISE
1) Kleben Sie die Rohre nicht in die Ein- oder Auslässe des
FAAST LT- 200-Geräts. Für Geräte mit eingeklebten Ansaugrohren
am Luftein-/auslass verfällt die Garantie, da sie nicht getestet
werden können.
2) Es wird empfohlen, dass die Luftein- und auslassöffnungen vor der
Verwendung verschlossen bleiben, bzw. dass sie vorübergehend
versiegelt werden, wenn das Gerät längere Zeit ausgeschaltet wird,
um das Eindringen von z.B. Insekten oder Spinnen zu vermeiden.

VERDRAHTUNG

Anschlüsse für Spannungsversorgung, Alarm und Steuerung
MONTAGE
ERDUNGS-
SCHIENE
F-LT-EB
ERDUNGS-
SCHIENE
(OPTIONAL)
ANSCHLÜSSE
FÜR SPAN-
NUNGSVER-
SORGUNG UND
ALARM
MONTAGE
ERDUNGS-
SCHIENE
MODUL-
BEFESTIGUNG
F-LT-PMB
MODUL
MONTAGEKIT
MODUL-
BEFESTIGUNG
(OPTIONAL)*
*Falls notwendig kann ein I/O MOdule
oder Koppler in das FAAST LT-200
installiert werden.
Das optionale Koppler-Zusatzmodul
(F-LT-PMB) wird dafür benötigt.
D200-101-01
4
6
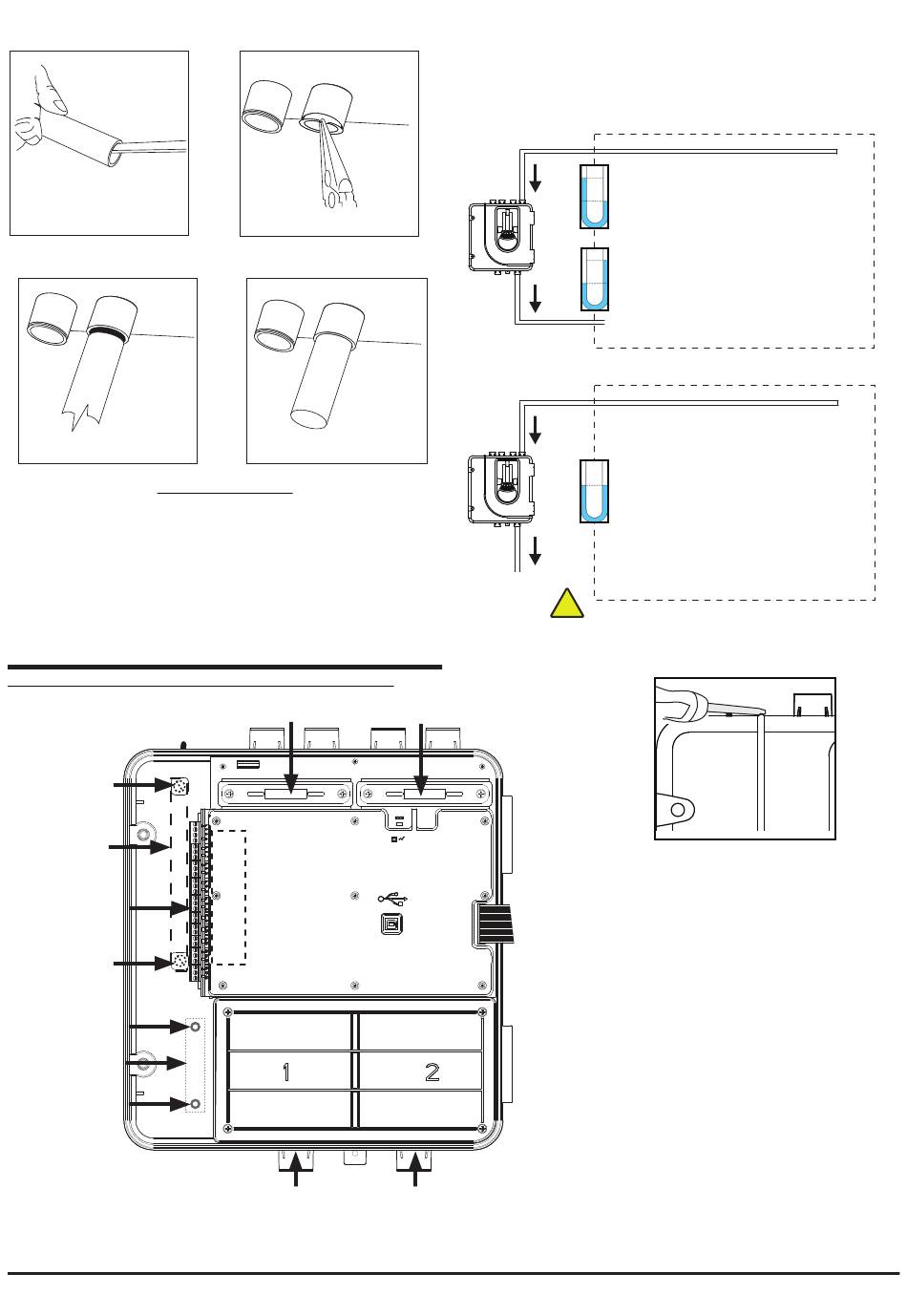
FILTER KANAL 1
FILTER KANAL 2
HIER
SCHALTPLANETIKETT
ANBRINGEN
USB-ANSCHLUSS
SENSOR- ABDECKUNG
POSITION FÜR
TESTMAGNET
Auslassrohr
Wird das FAAST LT-200-Gerät außerhalb des Risikobereichs installiert, so
können durch den Rückfluss der Abluft zurück in den geschützten Bereich
Luftstromstörungen aufgrund von Druckunterschieden verringert werden.
P P
P
!
Blieb die Gehäusetür des FAAST LT-200-Geräts über
einen längeren Zeitraum geschlossen (besonders
bei hohen Temperaturen), verwenden Sie ggf. einen
Schlitzschraubenzieher, um die Tür oben zwischen
den beiden Laschen aufzuhebeln (siehe oben).
Abbildung 9: Innenansicht des Melders
Hinweis 1: Die Verkabelung sollte den örtlich
geltenden Vorschriften und Anforderungen
entsprechen.
Hinweis 2: Eine Anlagenverkabelung muss den
Empfehlungen des Anlagenherstellers entsprechen.
4
PROBENAHMEBEREICH
PROBENAHMEBEREICH
I56-6574-002
Inhaltsverzeichnis
loading

Diese Anleitung auch für:

Fl0112e-hsFl0122e-hs

Inhaltsverzeichnis