Herunterladen Inhalt Inhalt Diese Seite drucken

SFA Sanigrease T Bedienungs- & Installationsanleitung Seite 3

Inhaltsverzeichnis
Verfügbare Sprachen
  • DE

Verfügbare Sprachen

  • DEUTSCH, seite 9
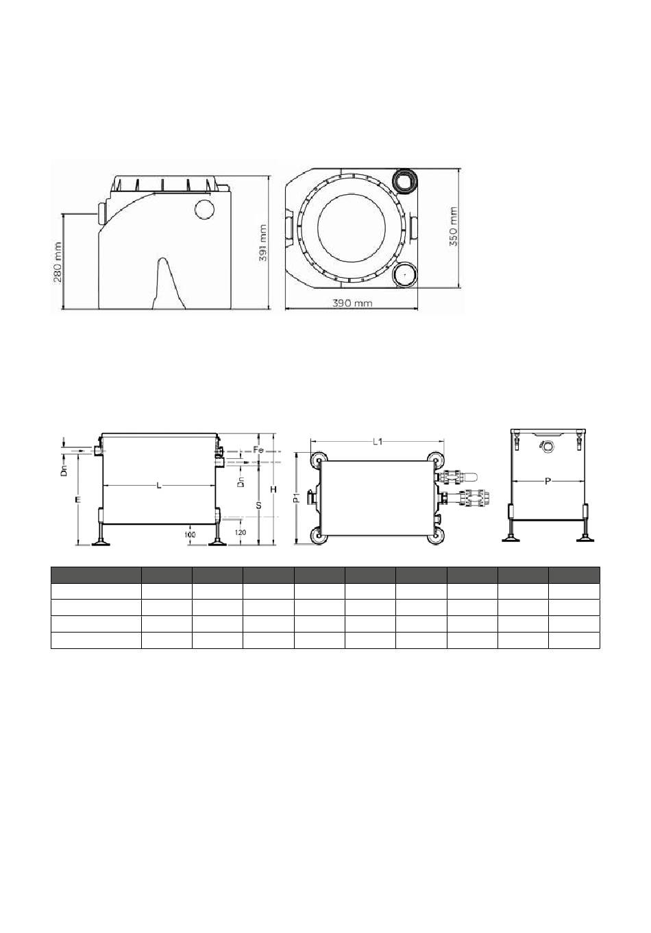
DIMENSIONS - ABMESSUNGEN - DIMENSIONI - AFMETINGEN -MEDIDAS
DIMENSÕES - DIMENSIONER - ROZMĚRY - WYMIARY - DIMENSIUNI - РАЗМЕРЫ
DIMENSIONER - 尺寸 - KÍCH THƯỚC
Sanigrease T 24
Sanigrease T 40/60/80/100
L (mm)
Sanigrease T 40
480
Sanigrease T 60
540
Sanigrease T 80
640
Sanigrease T 100
730
‫األبعاد‬
-
L1 (mm)
P (mm)
P1 (mm)
550
350
420
610
350
420
710
350
420
800
350
420
3
H (mm)
E (mm)
S (mm)
484
385
330
534
435
380
574
453
400
594
473
420
Fe (mm)
Dn
154
32
154
32
174
50
174
50
Inhaltsverzeichnis
loading

Inhaltsverzeichnis