Herunterladen Inhalt Inhalt Diese Seite drucken

Sensoren Und Zusätzliche Module Anschließen; Übersicht Klemmenraum Im Controller-Gehäuse - Endress+Hauser Liquiline System Ca80Fe Betriebsanleitung

Colorimetrischer analysator für eisen
Vorschau ausblenden Andere Handbücher für Liquiline System CA80FE:
Inhaltsverzeichnis
Elektrischer Anschluss
28
8. Schließen Sie das oder die Kabel (je nach Ausführung) an den folgenden Steckklem-
men an:
 25
Anschluss Liquiline System CAT820 / 860
1
Schlauchheizung 100 ... 120 V/200 ... 240 V AC (optional)
2
Anschlüsse Memosens und Kommunikation mit Analysator (optional)
9. Befestigen Sie die Schutzabdeckung nach dem Anschluss. Achten Sie darauf, dass
keine Kabel oder Schläuche eingeklemmt sind.
10. Befestigen Sie die Trägerplatte mit den sechs Schrauben nach dem Anschluss.
6.3
Sensoren und zusätzliche Module anschließen
6.3.1
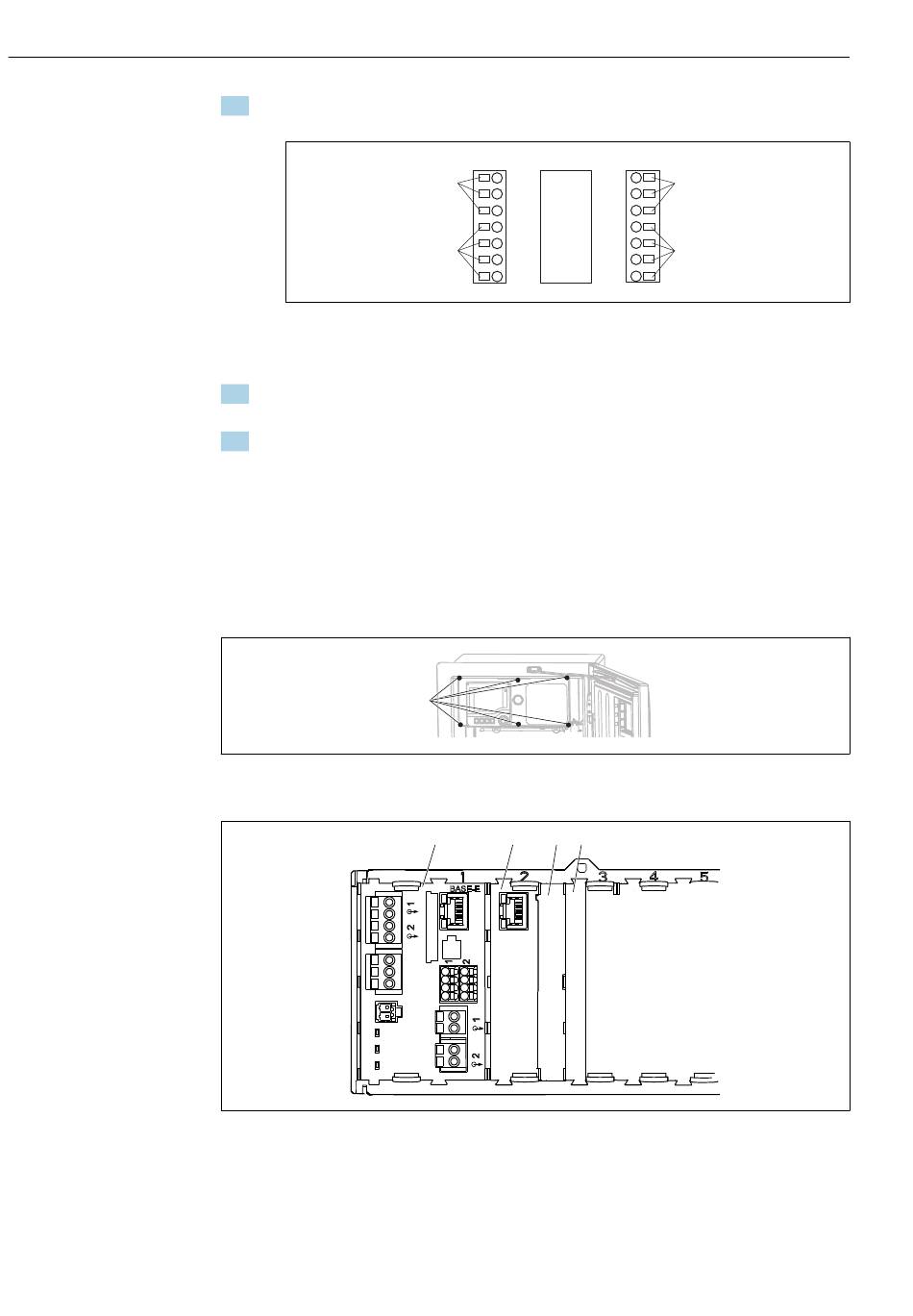
Übersicht Klemmenraum im Controller-Gehäuse
Das Controller-Gehäuse verfügt über einen separaten Anschlussraum. Nach Lösen der
sechs Schrauben der Elektronikraum-Abdeckung (1) kann dieser geöffnet werden:
1
Schrauben der Elektronikraum-Abdeckung
 26
Klemmenraum im Controller-Gehäuse
1
Basismodul-E
2
Analysator-Schnittstelle
3
Blinddeckel
4
Modulabdeckung
SP2
N
BK
1
L
BK
PE
GN/YE
GY
86
PK
85
2
GN
97
98
YE
1
1
2
3
4
BASE-E
Liquiline System CA80FE
SP1
N
1
L
PE
86
85
2
97
98
Endress+Hauser
A0028924
A0030429
A0028935
Inhaltsverzeichnis
loading

Inhaltsverzeichnis