Herunterladen Inhalt Inhalt Diese Seite drucken

Bijzondere Voorzieningen Voor Brandveiligheid Bij Vloeren In De Buurt Van De Haard - Spartherm Mini R1V 51 Aufbauanleitung

Vorschau ausblenden Andere Handbücher für Mini R1V 51:
Inhaltsverzeichnis
Verfügbare Sprachen
  • DE

Verfügbare Sprachen

  • DEUTSCH, seite 1
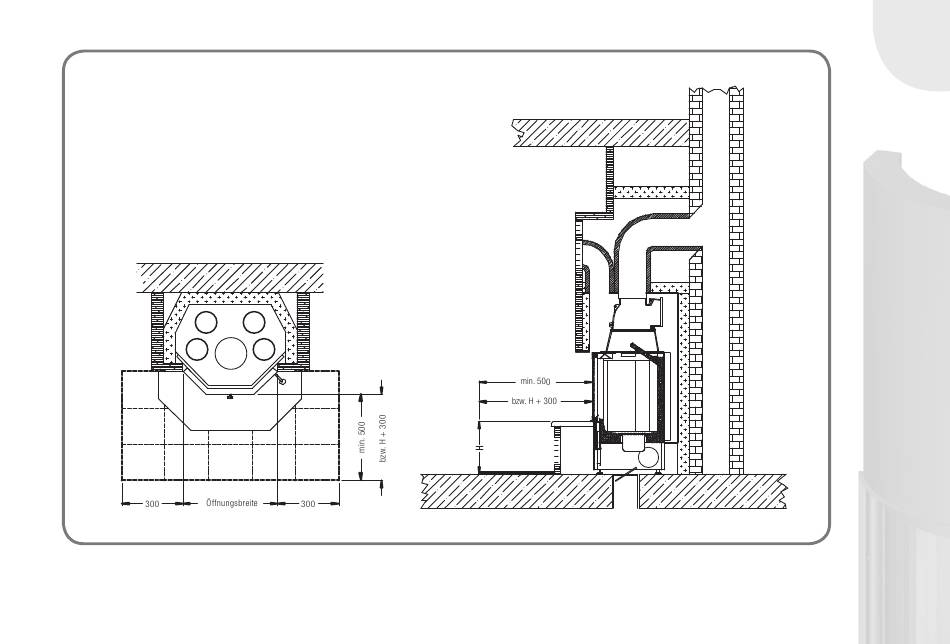
5.1.1. BIJZONDERE VOORZIENINGEN VOOR
BRANDVEILIGHEID BIJ VLOEREN IN
DE BUURT VAN DE HA ARD
Bij vloerbedekkingen, parket etc. moet een vonkenbescher-
ming van een vuurvast bodemmateriaal en niet-brandbaar
materiaal (bijv. natuursteen) worden aangebracht.
NL 9
NL

Quicklinks ausblenden:

Inhaltsverzeichnis
loading

Diese Anleitung auch für:

Mini r1v 51 nshfMini r1vh 57Mini r1vh 57 nshfMini r1vMini r1v nshfMini z1 ... Alle anzeigen

Inhaltsverzeichnis