Herunterladen Inhalt Inhalt Diese Seite drucken

PCME Stack 990 Plus Benutzerhandbuch Seite 8

Kontinuierliches messsystem für partikelemissionen
Inhaltsverzeichnis
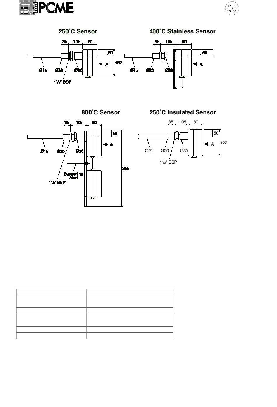
Der Sensorstab besteht entweder aus 316-er rostfreiem Stahl oder für feuchten (z. B.
Trocknungsprozesse) Anwendungen aus einem patentierten isolierten Stab. Um repräsentative
Messungen
gewährleisten
Kaminrohrleitungsgröße (die angegeben werden muß). Normalerweise sollte die Stablänge
mindestens halb so lang wie der Kamindurchmesser sein.
Stab - Bestellcode: Stack 990 – STAB xxxx X
xxxx = Stablänge in mm (z. B. 0500)
X = Staboberfläche (S = 316 rostfrei, P = PTFE (isoliert), C= Ceramic (isolierte )
Kamin/Kanal-Anschluss
Auslegung für
Umgebungstemperaturen
Gehäuseschutzart
Sensorgehäuse-Material
Spülluft (optional)
Kamindruck
BD 020033 / 01.2012
zu
können,
wird
1.5" NPT oder 1.5" BSP Buchse
-25 ° C bis +55 ° C
IP65
Aluminiumdruckguss
(mit Epoxidüberzug)
Stack 990—AIRPURGE (Spülluft)
>730PSI
Seite 8
der
Sensorstab
für
eine
bestimmte
Inhaltsverzeichnis
loading

Inhaltsverzeichnis