Anmelden
Hochladen
Herunterladen
Inhalt
Inhalt
Zu meinen Handbüchern
Löschen
Teilen
URL dieser Seite:
HTML-Link:
Lesezeichen hinzufügen
Hinzufügen
Handbuch wird automatisch zu "Meine Handbücher" hinzugefügt
Diese Seite drucken
×
Lesezeichen wurde hinzugefügt
×
Zu meinen Handbüchern hinzugefügt
Anleitungen
Marken
KRAUSE Anleitungen
Arbeitsbühnen
ClimTec
Aufbau- und verwendungsanleitung
Ballasttabelle Befestigung An Einer Wand - Krause Climtec System Aufbau- Und Verwendungsanleitung
Vorschau ausblenden
Andere Handbücher für ClimTec System
:
Aufbau- und verwendungsanleitung
(327 Seiten)
,
Bedienungsanleitung
(308 Seiten)
,
Aufbau- und verwendungsanleitung
(56 Seiten)
1
2
Inhalt
3
4
5
6
7
8
9
10
11
12
13
14
15
16
17
18
19
20
21
22
23
24
25
26
27
28
29
30
31
32
33
34
Seite
von
34
Vorwärts
/
34
Inhalt
Inhaltsverzeichnis
Lesezeichen
Inhaltsverzeichnis
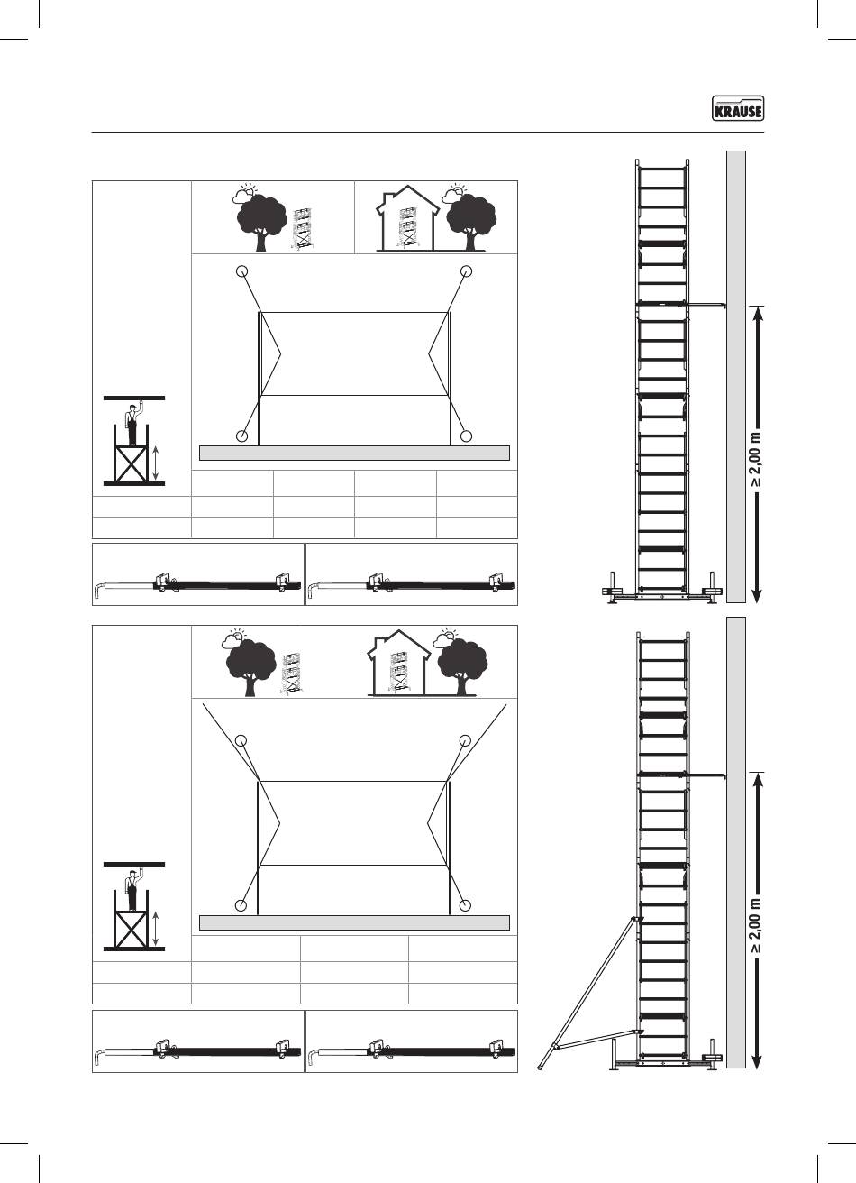
Ballasttabelle Befestigung an einer Wand
A
A
m
Position A
3,00
2*
5,00
4**
* 1 x Art�-No� 714305
A
B
m
Position A
3,00
0*
5,00
0**
* 1 x Art�-No� 714305
Gesamt
Position A
8*
2*
16**
4**
** 2 x Art�-No� 714305
+
A
Position B
Gesamt
2*
4**
** 2 x Art�-No� 714305
A
A
Gesamt
8*
16**
B
4*
8**
ClimTec
®
31
Inhalt
sverzeichnis
Vorherige
Seite
Nächste
Seite
1
...
28
29
30
31
32
33
34
Inhaltsverzeichnis
Verwandte Anleitungen für KRAUSE ClimTec System
Arbeitsbühnen KRAUSE ClimTec Aufbau- Und Verwendungsanleitung
Alu-fahrgerüst (327 Seiten)
Arbeitsbühnen KRAUSE ClimTec Bedienungsanleitung
(308 Seiten)
Arbeitsbühnen KRAUSE ClimTec Aufbau- Und Verwendungsanleitung
(56 Seiten)
Leitern KRAUSE CLIMTEC Bedienungsanleitung
(44 Seiten)
Leitern KRAUSE ClimTec Bedienungsanleitung
(21 Seiten)
Arbeitsbühnen KRAUSE ProTec Aufbau- Und Verwendungsanleitung
Fahrgerüst (fahrbare arbeitsbühne) (36 Seiten)
Arbeitsbühnen KRAUSE ProTec XXL Aufbau- Und Verwendungsanleitung
Fahrgerüst (fahrbare arbeitsbühne) (136 Seiten)
Arbeitsbühnen KRAUSE RollTec 710307 Aufbau- Und Verwendungsanleitung
Mobiles montagegerüst 0,70 x 1,50 m, gerüstgruppe 3 (20 Seiten)
Arbeitsbühnen KRAUSE STABILO Aufbau- Und Verwendungsanleitung
Faltgerüst (32 Seiten)
Arbeitsbühnen KRAUSE STABILO professional 10-Serie Aufbau- Und Verwendungsanleitung
Fahrgerüst (fahrbare arbeitsbühne) (140 Seiten)
Arbeitsbühnen KRAUSE STABILO Professional 10 Aufbau- Und Verwendungsanleitung
Fahrgerüst (fahrbare arbeitsbühne) (140 Seiten)
Arbeitsbühnen KRAUSE STABILO professional 782038 Aufbau- Und Verwendungsanleitung
Fahrgerüst (fahrbare arbeitsbühne) (140 Seiten)
Arbeitsbühnen KRAUSE ProTec XS Aufbau- Und Verwendungsanleitung
Fahrgerüst (fahrbare arbeitsbühne) (136 Seiten)
Arbeitsbühnen KRAUSE STABILO Professional 100 Aufbau- Und Verwendungsanleitung
Fahrgerüst (fahrbare arbeitsbühne) (138 Seiten)
Arbeitsbühnen KRAUSE ProTec Aufbau- Und Verwendungsanleitung
Fahrgeruest (76 Seiten)
Arbeitsbühnen KRAUSE ProTec XS ECO Aufbau- Und Verwendungsanleitung
Fahrgerüst (fahrbare arbeitsbühne) (76 Seiten)
Verwandte Inhalte für KRAUSE ClimTec System
ClimTec Ballasttabelle Befestigung An Einer Wand
KRAUSE ClimTec
ClimTec Verhalten Bei Arbeiten An Elektrischen Anlagen Mit Dem Gerüst
KRAUSE ClimTec
ClimTec Verhalten Bei Arbeiten An Elektrischen Anlagen Mit Dem Gerüst
KRAUSE ClimTec
ProTec Verhalten Bei Arbeiten An Elektrischen
KRAUSE ProTec
Inhaltsverzeichnis
Drucken
Lesezeichen umbenennen
Lesezeichen löschen?
Möchten Sie es aus Ihren Handbüchern löschen?
Anmelden
Anmelden
ODER
Mit Facebook anmelden
Mit Google anmelden
Anleitung hochladen
Von PC hochladen
Von URL hochladen