Herunterladen Inhalt Inhalt Diese Seite drucken

Endress+Hauser Liquiline System CA80HA Kurzanleitung Seite 28

Colorimetrischer analysator für gesamthärte
Vorschau ausblenden Andere Handbücher für Liquiline System CA80HA:
Inhaltsverzeichnis
Inbetriebnahme
7.1.2
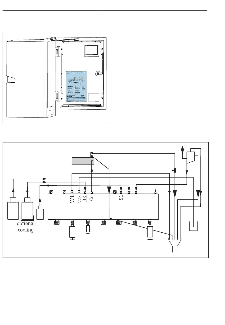
Verschlauchungsplan
 18
Verschlauchungsplan
S1
RK
C
 19
Liquiline System CA80HA, Einkanalgerät
S1
Standard 1
RK
Reagenz RK
W1
Ablauf
Cu
Küvette
M
Photometer/Messzelle
1
T-Stück
28
A0041298
D5
D6
M
2
3
P
2, 3, 7
D
SC
C
Die hier nachfolgenden Abbildungen sind
der Stand zum Ausgabezeitpunkt der
Dokumentation. Den für Ihre Ausführung
gültigen Verschlauchungsplan finden Sie
an der Innenseite der Tür des Analysators.
Verschlauchung ausschließlich gemäß
diesem Plan vornehmen.
D7
C
P
2
7
Probe
Spritzen
Ablauf
Probenvorlage
Reiniger
Liquiline System CA80HA
SC
1
D1
D2
optional
dilution
D
A0034793
Endress+Hauser
Inhaltsverzeichnis
loading

Inhaltsverzeichnis