Herunterladen Inhalt Inhalt Diese Seite drucken

System Lay-Out; Technical Characteristics - Rib Normal Bedienungsanleitung

C p1-crx
Vorschau ausblenden Andere Handbücher für NORMAL:
Inhaltsverzeichnis
Verfügbare Sprachen
  • DE

Verfügbare Sprachen

  • DEUTSCH, seite 44

SYSTEM LAY-OUT

NORMAL barrier
- Photoelectric cells
- Galvanized column for P.E. cells
- Fotocosta
- Magnetic loop
- Key selector
- Tuned aerial
- Emergency button

TECHNICAL CHARACTERISTICS

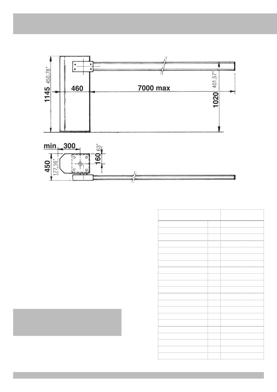
Lh./rh.irreversible gearmotor used for raising and lowering barrier poles up to 6-7 m long.
The upright can be supplied in a painted galvanized version.
The barrier boom can be supplied as one unjointed length or, where headroom is restricted, it can
be requested in an articulated version if you specify the height of the obstruction above road level.
Besides it can be supplied in one piece with hanging rack.
The barrier boom is designed to be fitted with a pneumatic or photocell safety strip.
ATTENTION: It is compulsory to conform the barrier characteristics to the current regulations and
laws.
THIS OPERATOR IS DESIGNED FOR THE VEHICLES ACCESS CONTROL
AND NOT FOR PEDESTRIANS.
Therefore, we higly recommend the use of safety devices and that of
one or more warning plates, art. ACG9642 to prevent the pedestrians
interfering with the operator.
181,10"
118,11"
2755,90"
Measurements in mm/inch
TECHNICAL
DATA
Max. boom lenght
Opening time
Max. torque
EEC Power supply
Motor capacity
Power absorbed
Capacitor
Power supply
Motor capacity
Power absorbed
Capacitor
Normative cycles 230V
Normative cycles 120V
Daily operations suggested
Service
Guaranteed consecutive cycles
Lubrification
Weight of electroreducer
Noise
Working Temperature
Protection grade
31
1
NORMAL
6-7
m
11
s
Nm
300
230V~ 50Hz
W
130
A
0,6
µF
6,3
120V~ 60Hz
W
168
1,46
A
µF
20
1000 - 11s/2s
∞ - 11,5s/2s
1000
100%
1000
SHELL OMALA S2 G100
145
kg
db
<70
-10 ÷ +55°C
IP
55
G
B
Inhaltsverzeichnis
loading

Inhaltsverzeichnis