Herunterladen Inhalt Inhalt Diese Seite drucken

Descrição Do Aparelho; Introdução; Dimensões - Sime Rondo 4 Erp Bedienungsanleitung

Vorschau ausblenden Andere Handbücher für Rondo 4 ErP:
Inhaltsverzeichnis
Verfügbare Sprachen
  • DE

Verfügbare Sprachen

  • DEUTSCH, seite 79
1
DESCRIÇÃO DO APARELHO
1.1
INTRODUÇÃO
As caldeiras de ferro fundido RONDÒ
- ESTELLE ErP são projectadas e con-
struídas para funcionam com gasóleo, com
uma combustão perfeitamente equilibrada
e tem um elevado rendimento que per-
mite ter baixos custos de utilização. Este
1.2
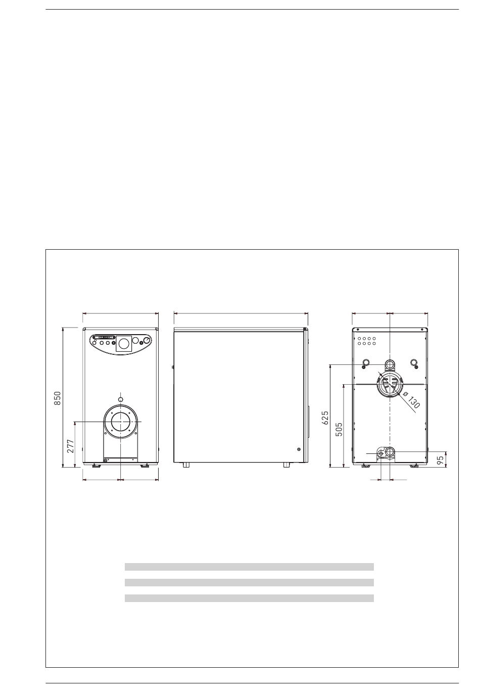
DIMENSÕES (fig. 1)
460
=
30
manual contem instruções para os seguin-
tes modelos de caldeiras:
– RONDÒ ErP somente para aquecimen-
to, pode ser acoplada com um acumu-
lador separado.
– ESTELLE ErP somente para aqueci-
mento, com porta da caldeira rever-
=
P Profundidade
M Ida instalação
R Retorno instalação
S
Descarga da caldeira
P
4 ErP
5 ErP
6 ErP
515
615
715
1
1 /
"
1
1 /
"
1
1 /
"
4
4
4
1
1 /
"
1
1 /
"
1
1 /
"
4
4
4
1/2"
1/2"
1/2"
sível, pode ser acoplada com um acu-
mulador separado.
Os componentes para instalação RONDÒ
ErP são fornecidos em três pacotes sepa-
rados: corpo da caldeira, o painel de
comando e a envolvente com um envelope
contendo os documentos.
=
=
M
S
55
7 ErP
815
1
1 /
"
4
1
1 /
"
4
1/2"
R
Fig. 1
Inhaltsverzeichnis
loading

Inhaltsverzeichnis