Anmelden
Hochladen
Herunterladen
Inhalt
Inhalt
Zu meinen Handbüchern
Löschen
Teilen
URL dieser Seite:
HTML-Link:
Lesezeichen hinzufügen
Hinzufügen
Handbuch wird automatisch zu "Meine Handbücher" hinzugefügt
Diese Seite drucken
×
Lesezeichen wurde hinzugefügt
×
Zu meinen Handbüchern hinzugefügt
Anleitungen
Marken
maco Anleitungen
Türschlösser
MULTI POWER
Montageanleitung
maco MULTI POWER Montageanleitung Seite 33
Vorschau ausblenden
1
Inhalt
2
3
4
5
6
7
8
9
10
11
12
13
14
15
16
17
18
19
20
21
22
23
24
25
26
27
28
29
30
31
32
33
34
35
36
37
38
39
40
41
42
43
44
45
46
47
48
49
50
51
52
53
54
55
56
57
58
59
60
61
62
63
64
65
66
67
68
69
70
71
72
73
74
75
76
77
78
79
80
81
82
83
84
85
86
87
88
89
90
91
92
Seite
von
92
Vorwärts
/
92
Inhalt
Inhaltsverzeichnis
Lesezeichen
Inhaltsverzeichnis
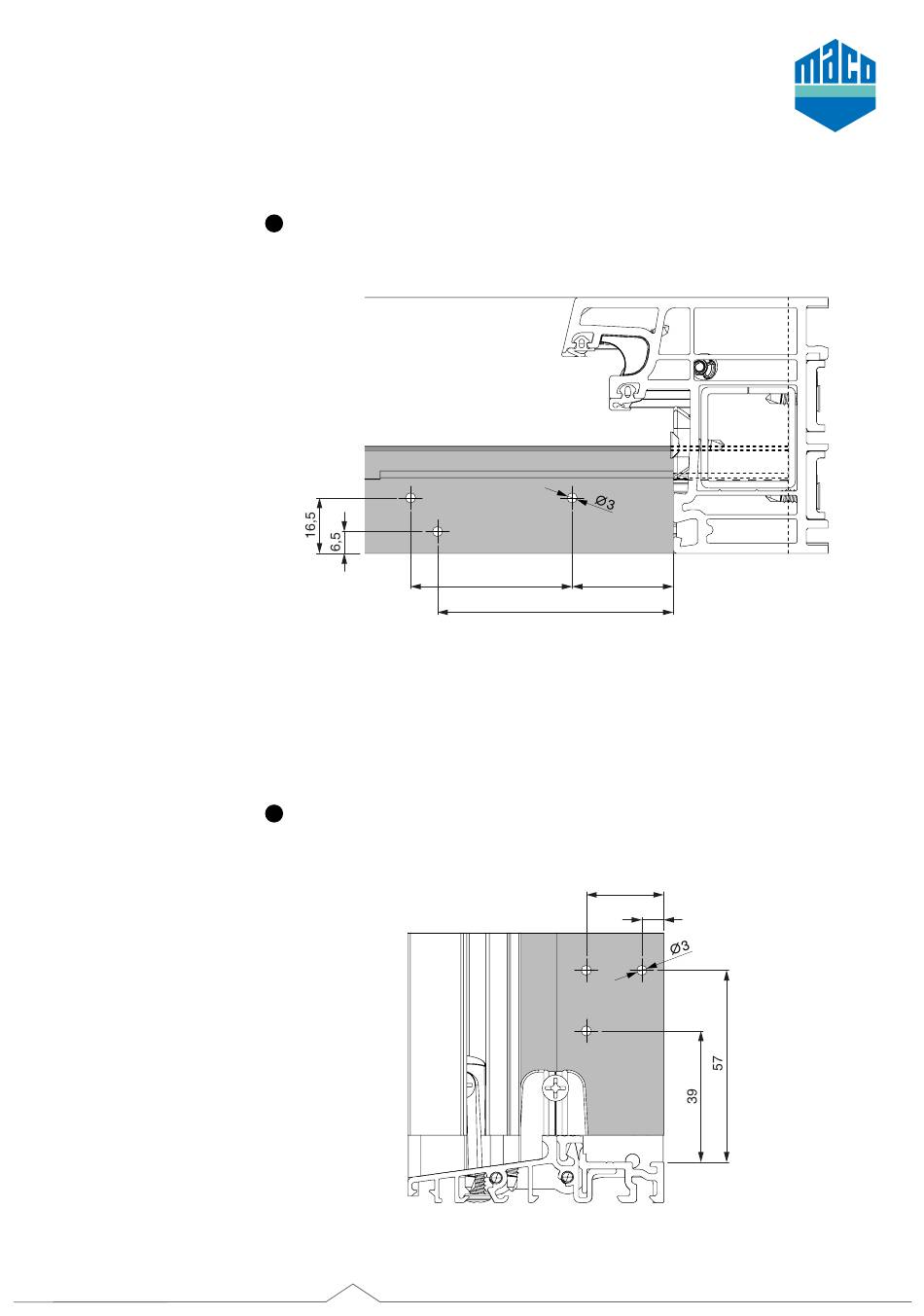
4a
Bohrbild waagrecht
4b
Bohrbild senkrecht
FENSTER
· TÜREN · SCHIEBETÜREN
48
30
70
23
6,5
48
70
23
6,5
30
33
Inhalt
sverzeichnis
Vorherige
Seite
Nächste
Seite
1
...
30
31
32
33
34
35
36
37
Inhaltsverzeichnis
Verwandte Anleitungen für maco MULTI POWER
Türschlösser maco MULTI Bedienungs- Und Wartungsanleitung
(24 Seiten)
Türschlösser maco MULTI-MATIC Montagehinweise
(64 Seiten)
Türschlösser maco PROTECT A-TS Montageanleitung
(44 Seiten)
Türschlösser maco PROTECT M-TS Montageanleitung
Motorschloss (56 Seiten)
Türschlösser maco RVS Montagehinweise
(4 Seiten)
Türschlösser maco Z-TS E92 DM35 PZ 2 HO-BO K+605 GM 885 Bedienungsanleitung
Türschloss edelstahl vk8 u-1.615x6/24/6 fix pt-m (6 Seiten)
Türschlösser maco Z-RS E92 DM25 PZ Gebrauchshinweise
Rohrrahmenschloss (7 Seiten)
Türschlösser maco A-TS Montageanleitung
(52 Seiten)
Türschlösser maco tronic Bedienungsanleitung
(96 Seiten)
Türschlösser maco PROTECT M-TS Handbuch
Motorisches türschlöss (38 Seiten)
Türschlösser maco 242452 Bedienungsanleitung
Rohrrahmenschloss (7 Seiten)
Türschlösser maco M-TS E92 DM50 PZ 2 MF-HO K+980 GM 885 silber VK8 U-1.990x6/24/6 fix PT Bedienungsanleitung
(8 Seiten)
Türschlösser maco PROTECT Montagehinweise
(28 Seiten)
Türschlösser Maco PROTECT Montagehinweise
Z-ta – zylinderbetätigtes 3-fallen-schloss automatic/comfort pvc mit übersicht opendoor (36 Seiten)
Verwandte Produkte für maco MULTI POWER
maco MULTI
maco Multi-Matic E Serie
maco MULTI-MATIC
maco Move HS-Serie
maco 232282
maco 245111
maco 245176
maco 245283
Inhaltsverzeichnis
Drucken
Lesezeichen umbenennen
Lesezeichen löschen?
Möchten Sie es aus Ihren Handbüchern löschen?
Anmelden
Anmelden
ODER
Mit Facebook anmelden
Mit Google anmelden
Anleitung hochladen
Von PC hochladen
Von URL hochladen