Herunterladen Inhalt Inhalt Diese Seite drucken

probst RINNENFIX RF-H Betriebsanleitung Seite 14

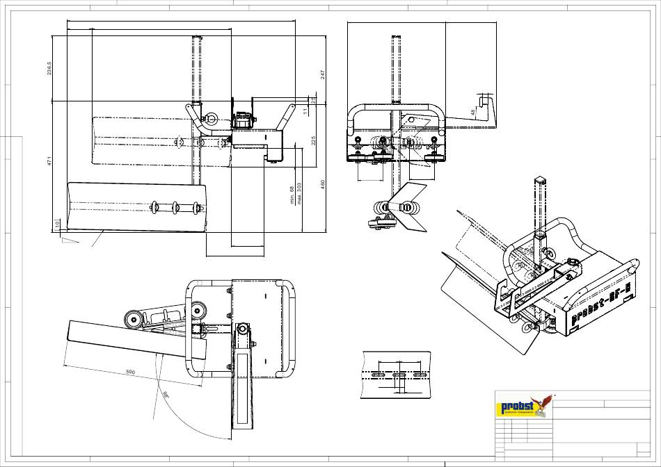
Abziehsystem für das betonplanum
Vorschau ausblenden Andere Handbücher für RINNENFIX RF-H:
Inhaltsverzeichnis
8
7
89
F
E
D
Neigung 2%
-----------------
Fall 2%
C
B
A
8
7
6
820
501
min. 118
max. 208
Ansicht A
-------------
View A
6
5
4
352
90
Abziehblech in Zeichnungsansichten
in Mittelstellung gezeichnet
------------------------------------------
Screeding plough drawn in middle position
75
75
A
17,5
17,5
Feineinstellung für Abziehblech
+ / - 17,5mm
------------------------------------------------------
Fine adjustment for screeding plough + / - 17,5 mm
5
4
3
2
183
19
90
Datum
Name
Erst.
3.7.2006
Rolf.Ganitz
Gepr.
WA:
Kunde:
1
Urspr.
Zust.
1
F
E
D
C
B
Bei Änderungen Rücksprache TB !
Gewicht:
12,9 kg
Schutzvermerk nach DIN 34 beachten!
Nachdruck nur mit unserer Genehmigung!
Benennung
Rinnen Fix RF-H
Blatt
Artikelnummer/Zeichnungsnummer
1
D51000064
1
von
Ers. f.
Ers. d.
Inhaltsverzeichnis
loading

Inhaltsverzeichnis