Herunterladen Inhalt Inhalt Diese Seite drucken

RAVAGLIOLI R203 Übersetzung Der Originalanleitung Seite 15

Gelenkspieltester
Inhaltsverzeichnis
RISERVATO AL PERSONALE AUTORIZZATO ALL'INSTALLAZIONE - ONLY FOR INSTALLATION-AUTHORIZED STAFF
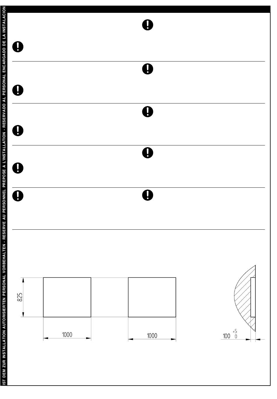
- Per le versioni interrate, realizzare una buca per le connes-
sioni dei tubi idraulici, ad uguale distanza tra le buche delle
piastre provagiochi.
Tutte le operazioni di installazione relative ai collega-
menti ad alimentazioni esterne (elettriche in particola-
re modo) devono essere eseguite da personale pro-
fessionalmente qualificato.
- For ploughed-under versions, dig a hole for hydraulic pipes
connections at the same distance between the play tester
plates.
All installation work concerning connections made to
external power supplies (particularly electrical) should
be done by professionally qualified personnel.
Grube für die Anschlüsse der Hydraulikleitungen in gleichem
Abstand zwischen den Gruben der Gelenkspielprüfplatten
realisiert werden.
Alle Installationsarbeiten, die externe Anschlüsse und
Versorgungsleitungen betreffen (insbesondere
Elektroarbeiten), müssen von beruflich qualifiziertem
Personal vorgenommen werden.
connexions des tuyaux hydrauliques à distance égale entre
les tranchées des plaques d'essai des jeux.
L'ensemble des opérations d'installation se rapportant
aux connexions aux sources d'alimentation externes
(les branchements électriques tout particulièrement)
doit être pris en charge par un personnel
professionnellement qualifié.
Todas las operaciones de instalación relativas a las
conexiones de alimentación externas (especialmente
eléctricas), tienen que estar realizadas por personal
cualificado profesionalmente.
L'installazione deve essere eseguita da personale
autorizzato seguendo le istruzioni particolari eventual-
mente presenti in questo libretto: in caso di dubbi
consultare i centri assistenza autorizzati o l'assisten-
za tecnica RAVAGLIOLI S.p.A.
Installation must be done by authorised personnel
following specific instructions where present in this
manual: if in doubt, please contact authorised service
centres or RAVAGLIOLI S.p.A. technical service
department.
Die Montage muss von autorisiertem Personal
entsprechend den evtl. in dieser Bedienungsanleitung
enthaltenen, spezifischen Anweisungen ausgeführt
werden. Im Zweifelsfall sich an die autorisierten
Servicestellen oder an den technischen Kundendienst
der Firma RAVAGLIOLI S.p.A. wenden.
L'installation doit être réalisée par le personnel autorisé
qui devra tenir compte des instructions particulières
ayant fait l'objet d'une mention éventuelle dans la
présente notice: en cas de doute, s'adresser aux
Services Après-Vente autorisés ou au Service
Assistance Techinque RAVAGLIOLI S.p.A.
La instalación tiene que realizarla el personal
autorizado siguiendo las instrucciones especiales
eventualmente presentes en este manual: en caso de
dudas póngase en contacto con los centros de
asistencia autorizados o con la asistencia técnica
RAVAGLIOLI S.p.A.
FONDAMENTA
FOUNDATIONS
Fig. 4
1506-M010-3
15
Inhaltsverzeichnis
loading

Diese Anleitung auch für:

R203iR203s

Inhaltsverzeichnis