Anmelden
Hochladen
Herunterladen
Zu meinen Handbüchern
Löschen
Teilen
URL dieser Seite:
HTML-Link:
Lesezeichen hinzufügen
Hinzufügen
Handbuch wird automatisch zu "Meine Handbücher" hinzugefügt
Diese Seite drucken
×
Lesezeichen wurde hinzugefügt
×
Zu meinen Handbüchern hinzugefügt
Anleitungen
Marken
Dimplex Anleitungen
Wärmepumpen
SI 24TE
Gebrauchsanweisung
Maßbilder / Dimensioned Drawings / Schémas Cotés; Maßbild / Dimensioned Drawing / Schéma Coté Si 24Te - Dimplex Si 24Te Gebrauchsanweisung
Sole/wasser-wärmepumpe für innenaufstellung
Vorschau ausblenden
Andere Handbücher für SI 24TE
:
Montage- und gebrauchsanweisung
(52 Seiten)
,
Gebrauchsanweisung
(24 Seiten)
,
Montage- und gebrauchsanweisungen
(56 Seiten)
1
2
3
4
5
6
7
8
9
10
11
12
13
14
15
16
17
18
19
20
21
22
Seite
von
22
Vorwärts
/
22
Inhalt
Inhaltsverzeichnis
Fehlerbehebung
Lesezeichen
1
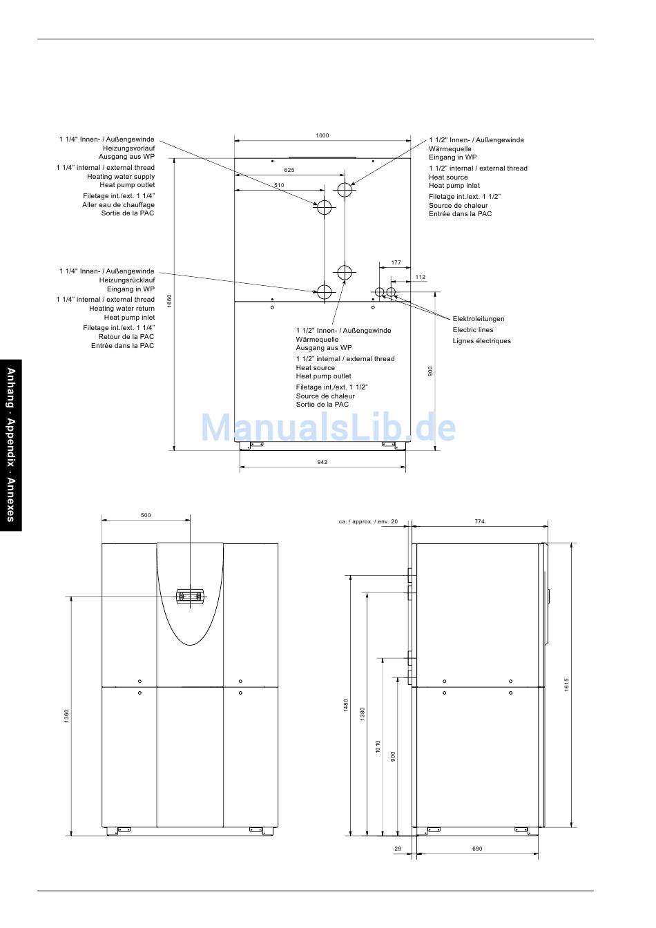
1 Maßbilder / Dimensioned drawings / Schémas cotés
1.1 Maßbild / Dimensioned drawing / Schéma coté SI 24TE
A-II
Inhalt
sverzeichnis
Vorherige
Seite
Nächste
Seite
1
...
8
9
10
11
12
13
14
15
Kapitel
Deutsch
2
Français
10
Verwandte Anleitungen für Dimplex SI 24TE
Wärmepumpen Dimplex SI 37TE Montage- Und Gebrauchsanweisungen
(56 Seiten)
Wärmepumpen Dimplex SI 24TE Montage- Und Gebrauchsanweisung
Sole/wasserwärmepumpe für innenaufstellung (52 Seiten)
Wärmepumpen Dimplex SI 24TE Gebrauchsanweisung
(24 Seiten)
Wärmepumpen Dimplex LA 6MR Installationsanleitung
Wärmepumpen mit veraeinfachter regelung (58 Seiten)
Wärmepumpen Dimplex SI 8 MR Montage- Und Gebrauchsanweisung
Sole/wasser wärmepumpe für innenaufstellung (56 Seiten)
Wärmepumpen Dimplex SI 5CS Montageanweisung Und Gebrauchsanweisung
Sole-wasser-wärmepumpe für innenaufstellung (40 Seiten)
Wärmepumpen Dimplex SI 7CS Montage- Und Gebrauchsanweisungen
Sole/wasser-wärmepumpe fuer innenaufstellung (48 Seiten)
Wärmepumpen Dimplex SI 22TU Montage- Und Gebrauchsanweisung
Sole/wasserwärmepumpe für innenaufstellung (56 Seiten)
Wärmepumpen Dimplex SI 22TU Montage- Und Gebrauchsanweisung
Sole/wasserwärmepumpe für innenaufstellung (44 Seiten)
Wärmepumpen Dimplex SI 22TU Montage- & Bedienungsanleitung/Gebrauchsanweisung
(60 Seiten)
Wärmepumpen Dimplex SI 5TE Montage- Und Gebrauchsanweisung
Sole/wasserwärmepumpe für innenaufstellung (33 Seiten)
Wärmepumpen Dimplex SI 7TE Montage- Und Gebrauchsanweisungen
(64 Seiten)
Wärmepumpen Dimplex SI 26TU Montage- Und Gebrauchsanweisungen
Sole-wasser-wärmepumpe fur innenaufstellung (68 Seiten)
Wärmepumpen Dimplex SI 35TU Montage- Und Gebrauchsanweisungen
Sole/wasserwärmepumpe für innenaufstellung (68 Seiten)
Wärmepumpen Dimplex SI 130TUR+ Gebrauchsanweisung
(52 Seiten)
Wärmepumpen Dimplex SI 5BS Montage- Und Gebrauchsanweisungen
(28 Seiten)
Verwandte Inhalte für Dimplex SI 24TE
SIH 90TU Maßbilder / Dimensioned Drawings / Schémas Cotés
Dimplex SIH 90TU
SI 75TE Maßbilder / Dimensioned Drawings / Schémas Cotés
Dimplex SI 75TE
452234.66.02 Maßbilder / Dimensioned Drawings / Schémas Cotés
Dimplex 452234.66.02
SI 37TE Maßbilder / Dimensioned Drawings / Schémas Cotés
Dimplex SI 37TE
WIH 120TU Maßbilder / Dimensioned Drawings / Schémas Cotés
Dimplex WIH 120TU
SIH 90TU Maßbilder / Dimensioned Drawings / Schémas Cotés
Dimplex SIH 90TU
SI 24TE Maßbilder / Dimensioned Drawings / Schémas Cotés
Dimplex SI 24TE
SI 50TE Maßbilder / Dimensioned Drawings / Schémas Cotés
Dimplex SI 50TE
SI 50TE Maßbilder / Dimensioned Drawings / Schémas Cotés
Dimplex SI 50TE
SI 24TE Maßbilder / Dimensioned Drawings / Schémas Cotés
Dimplex SI 24TE
WIH 120TU Maßbilder / Dimensioned Drawings / Schémas Cotés
Dimplex WIH 120TU
LI 9TEL Maßbilder / Dimension Drawings / Schémas Cotés
Dimplex LI 9TEL
SI 130TU Maßbilder / Dimension Drawings / Schémas Cotés
Dimplex SI 130TU
SI 50TU Maßbilder / Dimension Drawings / Schémas Cotés
Dimplex SI 50TU
WI 65TU Maßbilder / Dimension Drawings / Schémas Cotés
Dimplex WI 65TU
WI 120TU Maßbilder / Dimension Drawings / Schémas Cotés
Dimplex WI 120TU
Diese Anleitung auch für:
Si 37te
Drucken
Lesezeichen umbenennen
Lesezeichen löschen?
Möchten Sie es aus Ihren Handbüchern löschen?
Anmelden
Anmelden
ODER
Mit Facebook anmelden
Mit Google anmelden
Anleitung hochladen
Von PC hochladen
Von URL hochladen