Herunterladen Inhalt Inhalt Diese Seite drucken
Inhaltsverzeichnis
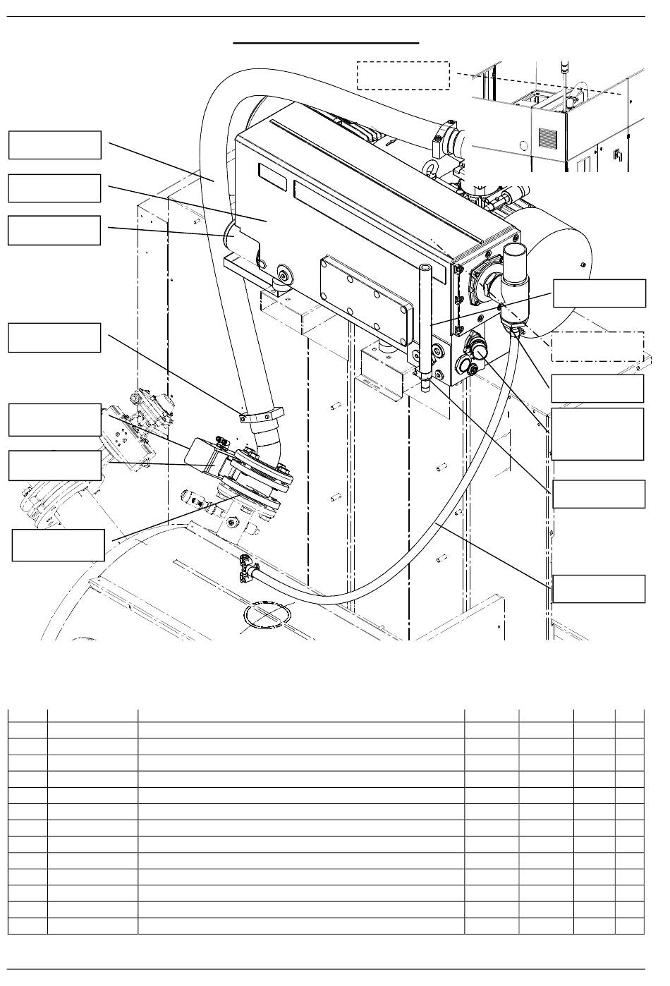
Ersatz- und Verschleißteile
16
4
8
13
2,3
1
9
Pos.: MAFAC-Nr.:
1
30057905
2
30056168
3
30056174
4
50006682
5
20001261
6
20001262
7
30044617
8
30044618
9
30035563
10
50006680
11
30006934
12
30006919
13
30052150
14
20000131
15
20000132
16
50012160
17
30046971
17.115.944

Vakuum-Trocknungssystem

Benennung
2-Wege-Blockkugelhahn
Initiator Induktiv
Montageset für induktiven Sensor
Drehsch.-Vakuumpumpe
Schmiermittel
Schmiermittel
Luftentölelement
Ölfilter
Flachdichtung
Manometer
Schlauchschelle
Schlauchschelle
Schlauchschelle
Schlauch
Schlauch
Schlauch
Clips-Lager
17
90
11
10
12
14
Menge
Einheit
E/V
1
Stück
E
1
Stück
E
1
Stück
E
1
Stück
E
5
Liter
V
2
Liter
V
4
Stück
V
1
Stück
V
2
Stück
V
1
Stück
E
4
Stück
E
1
Stück
E
2
Stück
E
1300
mm
E
400
mm
E
1700
mm
E
6
Stück
V
0816©MAFAC
15
7
5
6
WR
Inhaltsverzeichnis
loading

Inhaltsverzeichnis