Herunterladen Inhalt Inhalt Diese Seite drucken
Inhaltsverzeichnis
3.3

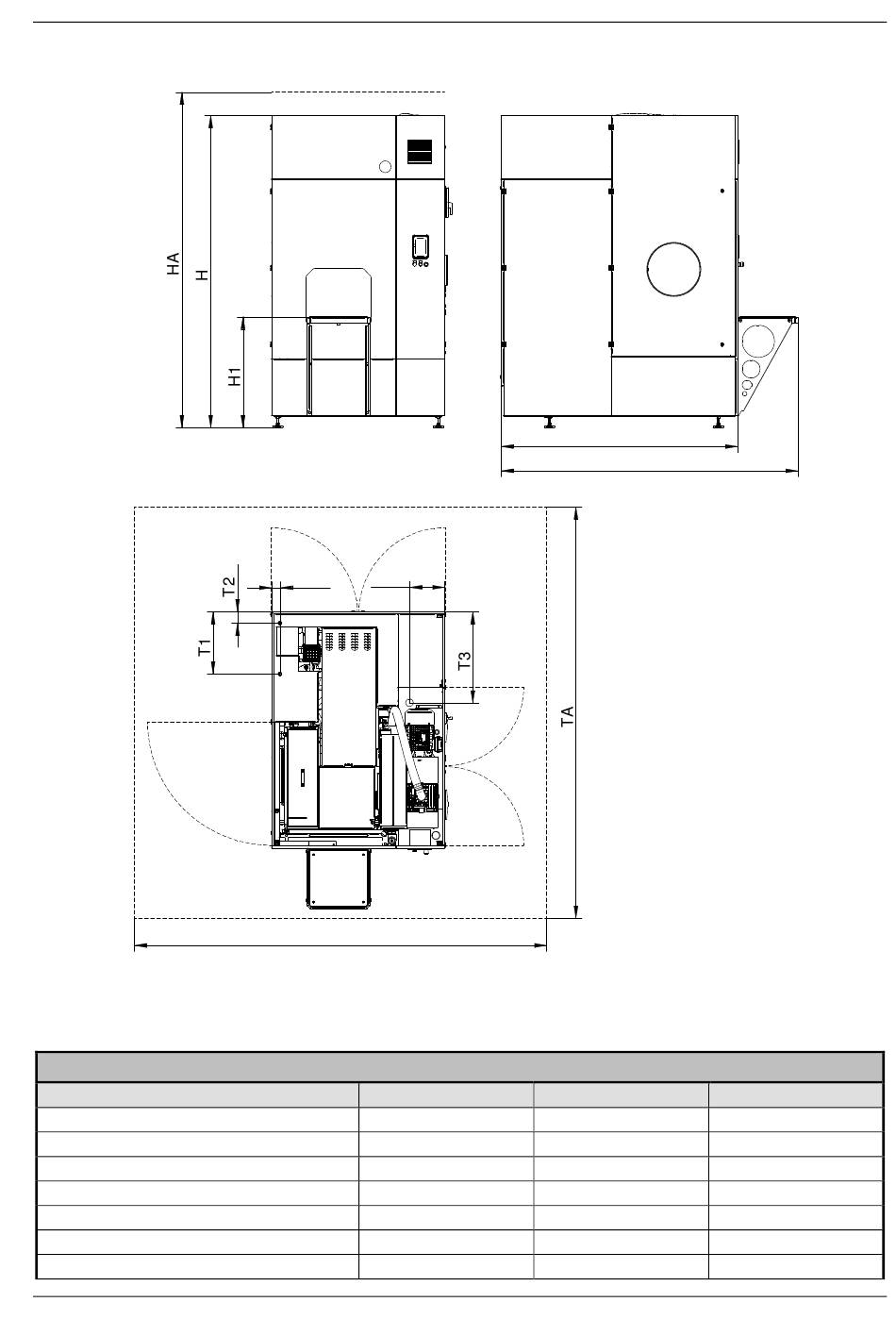
Abmessungen

Bezeichnung
Nutzraum
Außenmaße
Beschickungshöhe ohne Nivellierung -
Empfohlene Freifläche
Anschluss Elektrik
Anschluss Pneumatik
Anschluss Frischwasser
17.115.944
B1
B3
BA
Abb. : Abmessungen
Maßtabelle
Breite [mm]
Max. 480
B
1500
B
4000
A
B
305
3
B
73
2
B
73
1
27
T
T4
Tiefe [mm]
Max.
660
T 2050 / T
2570
4
-
T
4000
A
T
790
3
T
100
2
T
540
1
Maschinenbeschreibung
Höhe [mm]
Max. 338
H 2707 / 2150
H
960
1
H
4000 / 3000
A
H
2707
H
2707
H
2707
0816©MAFAC
Inhaltsverzeichnis
loading

Inhaltsverzeichnis