Herunterladen Inhalt Inhalt Diese Seite drucken

Endress+Hauser Liquiline System CA80COD Kurzanleitung Seite 18

Colorimetrischer analysator für chemischen sauerstoffbedarf
Vorschau ausblenden Andere Handbücher für Liquiline System CA80COD:
Inhaltsverzeichnis
Montage
4.2.3
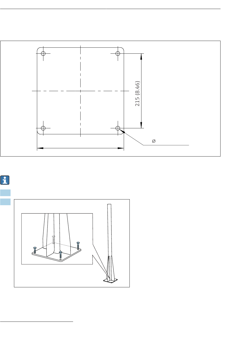
Ausführung "Outdoor": An Mast montieren
Mast aufstellen
 11
Fundamentplan, Abmessungen in mm (in)
Bei Installation im Freien ist ein fachgerechter Blitzschutz zu berücksichtigen.
1.
Fundament bauseits vorbereiten.
2.
Mast aufrichten und mit 4 Befestigungsschrauben (bauseits zu stellen
dament montieren.
1)
Wir empfehlen: Sechskantschraube mit Schaft, DIN 931: M10x100 in A2-Qualität + Unterlegscheibe + geeignete
Dübel
18
250 (9.84)
Liquiline System CA80COD
4 x 12 (0.47)
1)
) sicher am Fun-
Endress+Hauser
A0041437
Inhaltsverzeichnis
loading

Inhaltsverzeichnis