Herunterladen Inhalt Inhalt Diese Seite drucken
Inhaltsverzeichnis
Verfügbare Sprachen
  • DE

Verfügbare Sprachen

  • DEUTSCH, seite 71

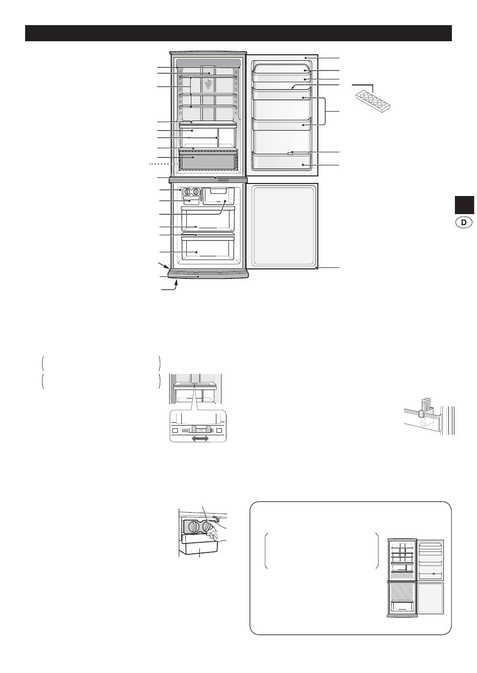
BESCHREIBUNG

Besonders Gekühlter Bereich
1.
LED-Leuchten
2.
Hybrid-Kühlungsplatte (Aluminiumplatte)
Durch diese rückseitig gekühlte Platte wird das Kühlabteil
✁ ✂ ✄ ☎ ✆ ✝ ✞ ☎ ✆ ✟ ✠ ✡ ✝ ☛ ☞ ☎ ✌ ☎ ✁ ✍ ✎ ✝ ✝ ☎ ✡ ✏ ☎ ✄ ✂ ☎ ✁ ✍ ✑ ✎ ✝ ✍ ✒ ✁ ✓ ✝ ✞ ☎ ✆ ✟ ✠ ✡ ✝ ✔
ohne einem kalten Luftstrom ausgesetzt zu sein.
3.
✕ ✖ ✗ ✘ ✙ ✚ ✛ ✜ ✢ ✘ ✣ ✤ ✚ ✥ ✛ ✜ ✘ ✘ ✦ ✧ ★ ✗ ✜ ✩
SJ-WS320T,SJ-RP320T
SJ-WP320T,SJ-RM320T
SJ-WS360T,SJ-RP360T
SJ-WP360T,SJ-RM360T
4.
Obst- & Gemüsefach
Der Luftstrom zum
Gemüsefrischhaltefach kann durch
Verschieben des unten gezeigten
Hebels nach rechts oder links
verändert werden.
5.
Obst- & Gemüsefrischhaltefach
6.
Trennboden
7.
✤ ✚ ✥ ✛ ✜ ✘ ✘ ✦ ✧ ★ ✗ ✜
8.
Kühlfach um 0° Celsius
9.
Bedienfeld
10.
Eiswürfelbereiter
1)
Geben Sie nicht zuviel Wasser in
✪ ✫ ✬ ✭ ✫ ✮ ✮ ✯ ✰ ✱ ✲ ✬ ✳ ✪ ✱ ✮ ✴ ✵ ✮ ✶ ✪ ✫ ✬ ✭ ✫ ✮ ✷ ✸ ✹ ✺ ✬ ✲
zusammenfrieren.
2)
Wenn die Eiswürfel erstarrt
✮ ✫ ✵ ✪ ✳ ✪ ✹ ✬ ✰ ✬ ✵ ✻ ✫ ✬ ✪ ✬ ✵ ✼ ✬ ✽ ✬ ✲ ✫ ✾
✿ ✰ ✹ ❀ ✬ ✫ ❁ ✬ ✹ ✮ ✫ ✵ ✵ ✳ ❂ ✾ ✪ ✱ ✮ ✭ ✫ ✮ ✫ ✵ ✪ ✬ ✵
Eiswürfelbehälter zu leeren.
HINWEISE
Verwenden Sie zum Herstellen von Eiswürfeln nicht
✪ ✬ ✵ ✭ ✫ ✮ ✷ ✸ ✹ ✺ ✬ ✲ ✽ ✬ ✰ ❃ ✲ ✶ ✬ ✹ ✳ ❂ ✵ ✪ ❁ ✫ ✬ ❄ ✬ ✵ ✻ ✫ ✬ ❅ ✬ ✫ ✵ ❆ ✲ ✰ ✫ ✵ ✬ ✫ ✵ ✳ ✬ ✹
könnte dabei platzen.
11.
Eiswürfelbehälter
12.
Tiefkühlfach (oberes)
13.
Tiefkühlfach (mittleres)
14.
Tiefkühlfach (unterseite)
1
2
3
4
5
6
7
8
9
10
11
12
13
15
14
17
16
18
:
2 St.
:
3 St.
Hebel
Eiswürfelbehälter
SJ-WS360T
15.
Tiefkühlfachboden
16.
Fußabdeckung
17.
Rollfüße
(4 St.)
18.
Verstellbare Füße
19.
Lebensmittelfachabdeckung
20.
Lebensmittelfach
21.
Eiereinsatz
22.
Türfächer
(2 St.)
23.
Flaschenstopper / Flaschenhalter
Schützt Flaschen vor dem Herausfallen.
❇ ✸ ✵ ✵ ✬ ✳ ✲ ❃ ✵ ❁ ✲ ✫ ✯ ✰ ✬ ❈ ✱ ✰ ✹ ❂ ✵ ❁ ✮ ✾ ✫ ✶ ✶ ✬ ✲ ✷ ✬ ✹ ✪ ✬ ✵
hier aufbewahrt.
24.
Flaschenfach
25.
Magnetische Türdichtungen
Geruchsneutralisierungseinheit
Ein desodorierender Katalysator ist in den Kaltluftleitungen
installiert. Weder Bedienung noch Reinigung sind erforderlich.
Durch Entfernen der folgenden Zubehörteile wie in
untenstehender Abbildung gezeigt, können mehr
Nahrungsmittel gelagert werden.
❉ ✸ ✰ ✲ ✺ ✱ ✯ ✰ ❂ ✾ ❊ ❋ ● ✬ ✲ ✮ ✫ ❂ ✮ ✳
✭ ✫ ✮ ✷ ✸ ✹ ✺ ✬ ✲ ✽ ✬ ✹ ✬ ✫ ✶ ✬ ✹ ✳
✭ ✫ ✮ ✷ ✸ ✹ ✺ ✬ ✲ ✽ ✬ ✰ ❃ ✲ ✶ ✬ ✹ ✳ ❍ ✫ ✬ ✺ ❅ ✸ ✰ ✲ ✺ ✱ ✯ ✰
(oberes & mittleres)
Wird der Kühlschrank betrieben
während diese Zubehörteile
❏ ❑ ▲ ▼ ◆ ❖ ❏ ❑ € ▲ ◗ ❘ ❙ ❚ ❏ ❯ ❖ ◆ ◗ € ◆ € ◆ ❯ ❏ ❱
◆ ❘ ◆ ❯ ▼ ◗ ◆ ◆ ❲ ❳ ❨ ◗ ◆ ❘ € ◆ ▲ € ◆ ❘ ❩
Bitte entfernen Sie nicht das untere
Tiefkühlfach.
25
19
20
21
22
23
24
25
(2 St.)
(2 St.)
73
Inhaltsverzeichnis
loading

Inhaltsverzeichnis