Herunterladen Inhalt Inhalt Diese Seite drucken

Prinzipschaltplan Für Stern-Dreieck-Anlauf Mit Sondermotor - Gea In Touch Hgx7 R134A Montageanleitung

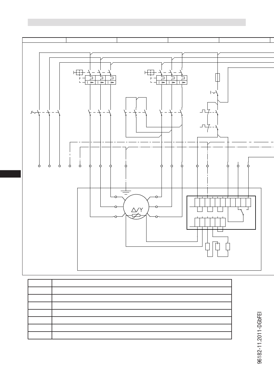
Bock verdichter
Inhaltsverzeichnis
5.5 Prinzipschaltplan für Stern-Dreieck-Anlauf mit Sondermotor
0
Q1
X SS
L1
L2
D
GB
F
E
Abb. 15
R1
Kaltleiter (PTC-Fühler) Motorwicklung
R2
Wärmeschutzthermostat (PTC-Fühler)
F1.1 / 1.2 2 Motorschutzschalter
F2
Sicherung Steuerstromkreis
F3
Hochdrucksicherheitswächter
F4
Sicherheitskette (Hoch-/Niederdrucküberwachung)
F5
Öldifferenzdruckwächter
B1
Freigabeschalter (Thermostat)
1
18
Žnderung
Datum
1
F1.1
I=66%
60%
1
3
5
K1
2
4
6
L3
N
PE
1
2
3
Anschluákasten Verdichter
Datum
20.Feb.2009
Bearb.
Kelich
Gepr.
03.Nov.2010
Name
Norm
2
F1.2
40%
I=33%
1
3
5
1
K3
K2
2
4
6
2
Y
PE
4
M1
U1
W2
M
V1
~
U2
3
W1
V2
R1
Urspr.
3
F2
4A
S1
F1.1
3
5
4
6
F1.2
5
6
7
8
X1 L1 L1 N
N 43 43 11
X2 1
2 3
4
5
6
R2
R2
R2
Ers. f.
4
9
10
11
L
S
M
12
14
MP10
Ers. d.
Inhaltsverzeichnis
loading

Inhaltsverzeichnis