Herunterladen Inhalt Inhalt Diese Seite drucken

Daikin R410A SPLIT SERIES Installationsanleitung Seite 158

Vorschau ausblenden Andere Handbücher für R410A SPLIT SERIES:
Inhaltsverzeichnis
Verfügbare Sprachen
  • DE

Verfügbare Sprachen

  • DEUTSCH, seite 40
‫ﺗﺒ ﻴ ﹼﻦ ﺍﻟﻌﻼﻣﺔ‬
‫ﺍﺗﺠﺎﻩ ﺍﻻﻧﺎﺑﻴﺐ‬
‫ﺍﻟﺨﻠﻒ‬
‫ﺍﻟﻴﺴﺎﺭ‬
‫ﺍﻟﻤﻨﻈﺮ ﺍﻟﻌﻠﻮﻱ‬
‫ﺍﻻﺳﻔﻞ‬
‫ﺷﻖ ﺍﻟﺘﻬﻮﻳﺔ‬
‫ﺑﺮﻏﻲ ﺗﺜﺒﻴﺖ ﺍﻟﺸﺒﻜﺔ ﺍﻻﻣﺎﻣﻴﺔ‬
‫ﺍﻟﻤﻨﻈﺮ ﺍﻷﻣﺎﻣﻲ‬
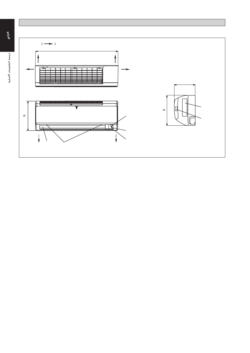
‫ﺍﻟﺮﺳﻢ ﺍﻟﺘﺨﻄﻴﻄﻲ ﻭﺍﻷﺑﻌﺎﺩ‬
A
‫ﺍﻟﺨﻠﻒ‬
‫ﺍﻻﺳﻔﻞ‬
‫ﺍﻟﺪﺍﺧﻞ‬
(
)
١
‫ﺍﻟﻴﻤﲔ‬
‫ﻣﺴﺘﻘﺒﻞ ﺍﻻﺷﺎﺭﺓ‬
‫ﺍﻟﻮﺣﺪﺓ ﺍﻟﺪﺍﺧﻠﻴﺔ ﻣﻔﺘﺎﺡ‬
‫ﺍﻳﻘﺎﻑ‬
‫ﺗﺸﻐﻴﻞ‬
OFF
/ON
‫ﺛﺮﻣﻮﺳﺘﺎﺕ ﺩﺭﺟﺔ ﺣﺮﺍﺭﺓ‬
‫ﺍﻟﺪﺍﺧﻞ‬
‫ﺍﻟﻐﺮﻓﺔ‬
(
)
‫ﺍﻟﻮﺣﺪﺓ ﺍﻟﺪﺍﺧﻠﻴﺔ‬
[FTXN/FTK]
C
‫ﺻﻔﻴﺤﺔ ﺍﻻﺳﻢ‬
‫ﺑﻠﻮﻙ ﺍﻟﺘﻮﺻﻴﻞ ﻣﻊ‬
‫ﺗﻮﺻﻴﻞ ﺍﻻﺭﺿﻲ‬
‫ﺍﻟﻤﻨﻈﺮ ﺍﻟﺠﺎﻧﺒﻲ‬
Inhaltsverzeichnis
loading

Inhaltsverzeichnis