Herunterladen Inhalt Inhalt Diese Seite drucken

GEA HA22P Montageanleitung Seite 17

Inhaltsverzeichnis
5
6
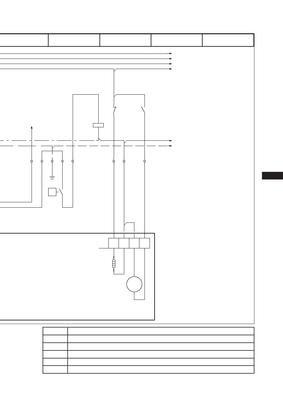
A3
PE
P<
BP2
SF1
Schalter Steuerspannung
EC1
Verdichtermotor
GQ1
Lüftermotor
QA2
Verdichterschütz
MP10
Elektron. Auslösegerät MP 10
EB1
Ölsumpfheizung
7
QA2
QA2
QA2
1
2
3
EB1
M
GQ1
1~
8
L1.1
L2.1
L3.1
L1.2
N
PE
A1 Alarm Motorschutz
A2 Übertemperatur BT1, BT2
A3 Alarm Hochdruck
4
9
D
GB
F
E
I
Ru
15
Inhaltsverzeichnis
loading

Inhaltsverzeichnis