Herunterladen Inhalt Inhalt Diese Seite drucken

RAVAGLIOLI RAV4352 Bedienungsanleitung Seite 25

Elektro-hydraulische 4-säulen hebebühnen
Vorschau ausblenden Andere Handbücher für RAV4352:
Inhaltsverzeichnis
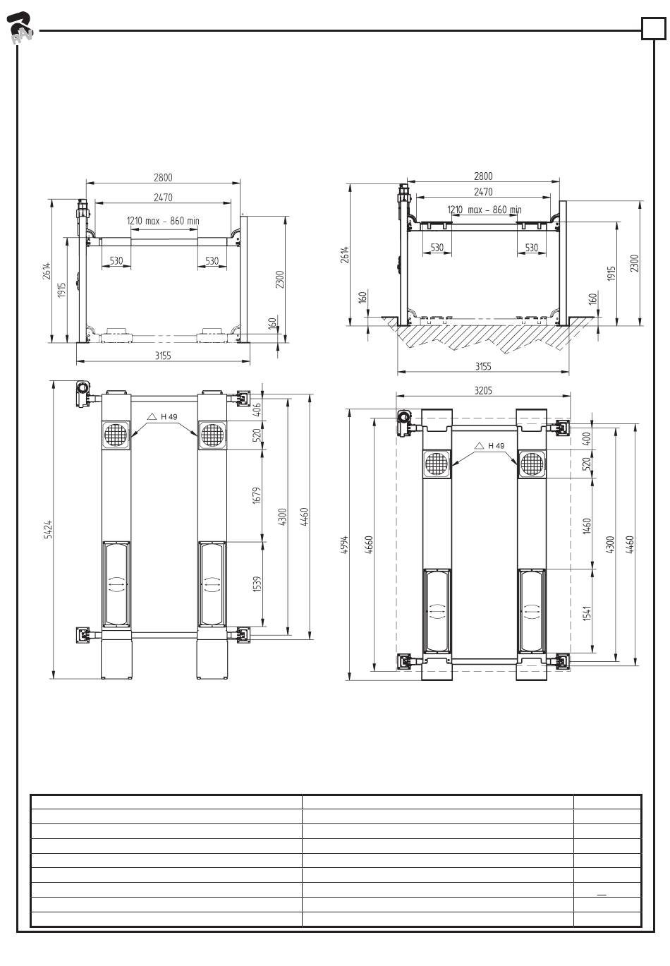
RAV.4402X.194350
A PAVIMENTO/FLOOR LIFT
CARATTERISTICHE TECNICHE
Portata sollevatore (kg)
Motore (kW)
Tempo di salita sollevatore (")
Tempo di discesa sollevatore (")
Peso (kg)
Emissione sonora dB(A)
Pressione olio (bar)
Pressione aria (bar)
20
RAV.4402X.194350
AD INCASSO/RECESSED LIFT
SPECIFICATIONS
Lift capacity (kg)
Motor (kW)
Lift rise time (")
Lift descent time (")
Weight (kg)
Noise level dB(A)
Oil pressure (bar)
Air pressure (bar)
0717-M020-7
2
4.000
2.6
35
30
850
< 75
230
6-12
Inhaltsverzeichnis
loading

Inhaltsverzeichnis