Herunterladen Inhalt Inhalt Diese Seite drucken

RAVAGLIOLI RAV4352 Bedienungsanleitung Seite 159

Elektro-hydraulische 4-säulen hebebühnen
Vorschau ausblenden Andere Handbücher für RAV4352:
Inhaltsverzeichnis
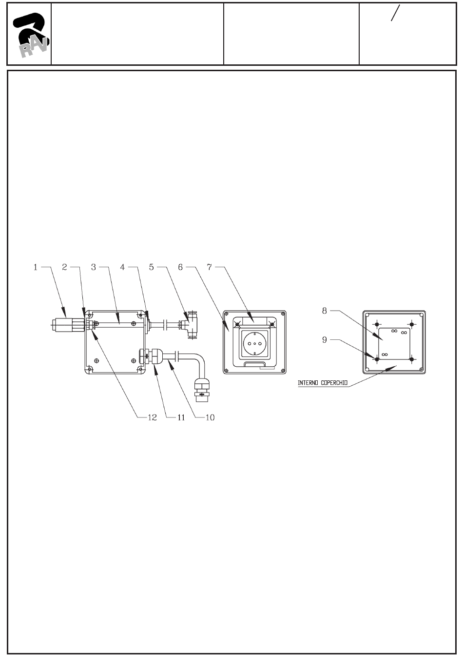
Denominazione tavola - Table definition
KIT ENERGIA
POWER SUPPLY KIT
154
Valida per i modelli - Apply to models
RAV4352 - RAV4401T
RAV.4402X.194350 - RAV4406E
RAV.4406L.194992 - RAV4502E
RAV4504OF - RAV4506OF
RAV4508OF
0717-M020-7
N° tavola
Indice di modifica
Table no.
Change index
14/
0
Inhaltsverzeichnis
loading

Inhaltsverzeichnis