Herunterladen Inhalt Inhalt Diese Seite drucken

Geforderte Toleranzen Einhalten - Sl Rack Freiflachensysteme Montageanleitung

Inhaltsverzeichnis
10. FUNDAMENTE RAMMEN

10.3. Geforderte Toleranzen einhalten

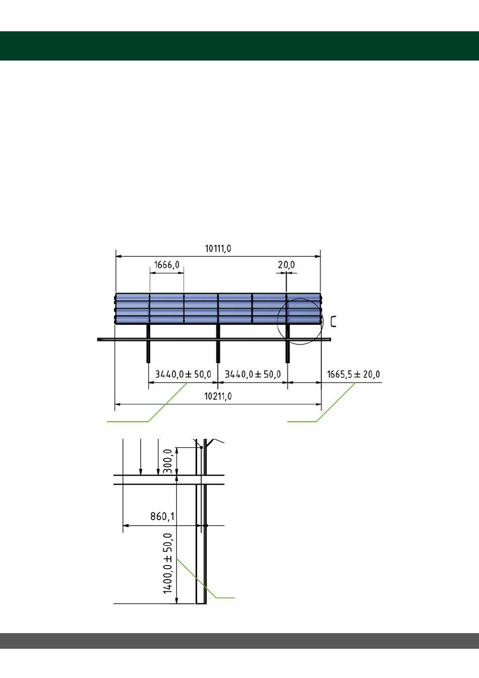
Die Tischgestelle werden stets für die Wind- und Schneeeinwirkungen des jeweiligen Standorts ausgelegt. Im Sinne
der Wirtschaftlichkeit sind die Einzelkomponenten dabei typischerweise bis zur Bauteiltragfähigkeit ausgenutzt.
Daher ist die Einhaltung der nachfolgend aufgeführten Toleranzen wesentlich für die Standsicherheit des
Gestells.
• Lassen Sie die Rammarbeiten ausschließlich durch Fachfirmen ausführen.
• Rammen Sie bereits die Fundamente mit hoher Präzision.
So schaffen Sie die Grundvoraussetzung für das Einhalten der geforderten Toleranzen bei der Montage des Gestells.
Stützweiten
24
SL Rack GmbH | Münchener Straße 1 | 83527 Haag i. OB
Auskragung
Die Neigung nach allen Richtungen und die Verdrehung
der Rammprofile sollen ± 3° nicht überschreiten
Rammtiefe/Einbindetiefe
Inhaltsverzeichnis
loading

Inhaltsverzeichnis