Herunterladen Inhalt Inhalt Diese Seite drucken

Optidew 501 Analysator Zur Wandmontage - Ip65 - Pst Michell Instruments Optidew Bedienungsanleitung

Taupunkt-spiegel-hygrometer
Inhaltsverzeichnis
ANHANG D
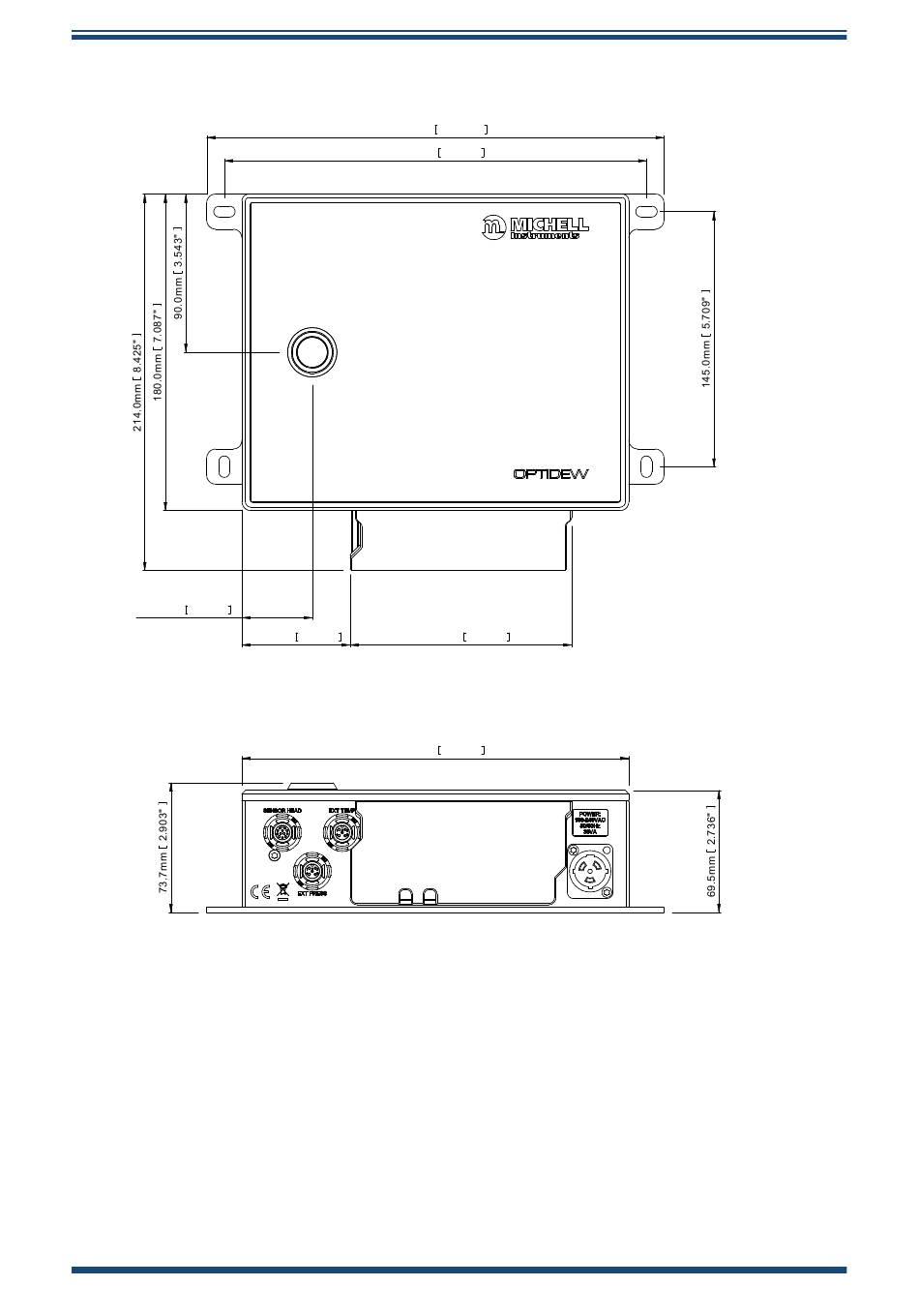
Optidew 501 Analysator zur Wandmontage – IP65
40.0mm 1.575"
XXXX
XX/XX/16
XXXXXXXXXXX
REV
ECN No.
DATE
66
61.5mm 2.421"
amy.salter
DESCRIPTION
CREATED
Bedienungsanleitung Optidew
260.0mm 10.236"
240.0mm 9.449"
126.0mm 4.961"
220.0mm 8.661"
THIS DOCUMENT IS THE PROPERTY OF MICHELL
INSTRUMENTS LTD. AND MUST NOT BE COPIED
NOR DISCLOSED TO A THIRD PARTY WITHOUT
THE CONSENT OF MICHELL INSTRUMENTS.
APPROVED
MICHELL INSTRUMENTS LTD. 20/07/2016 F0150
MATERIAL:
TOLERANCES & DIMENSIONS
3rd ANGLE
0 DEC. PLACE: ± 0.5
PROJECTION
1 DEC. PLACE: ± 0.2
2 DEC. PLACE: ± 0.1
HOLES Ø:± 0.1
ANGLES:± 0.5°
DRAWING UNITS: mm
SCALE: 1:1
97551 DE Ausgabe 4, März 2022
DRAWING TITLE:
OPTIDEW 501 IP65 T
PROJECT:
7544
Inhaltsverzeichnis
loading

Inhaltsverzeichnis