Herunterladen Inhalt Inhalt Diese Seite drucken

Daikin R32 SPLIT SERIE Installationsanleitung Seite 145

Vorschau ausblenden Andere Handbücher für R32 SPLIT SERIE:
Inhaltsverzeichnis
Verfügbare Sprachen
  • DE

Verfügbare Sprachen

  • DEUTSCH, seite 44
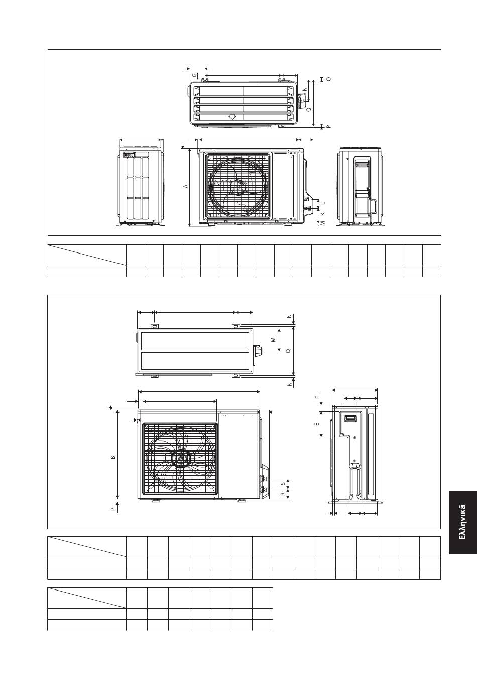
Εξωτερική μονάδα [RXC]
Διάσταση
A
Μοντέλο
25/35
550 658
Εξωτερική μονάδα [RXC]
O
3,0
V
Διάσταση
A
Μοντέλο
50
855
60
855
Διάσταση
P
Μοντέλο
50
23
60
23
J
E
F
D
2,0
B
C
D
E
F
51
11
273
16
L
K
A
D
B
C
D
E
628
328
520
179
730
328
520
179
Q
R
S
T
362
73
75
8
362
73
75
8
Όλες οι διαστάσεις είναι σε mm
H
I
B
C
G
H
I
J
K
14
470
96
93
94
Όλες οι διαστάσεις είναι σε mm
L
U
F
G
H
I
J
46
93
149
101
113
46
93
149
101
113
U
V
67
7
67
7
8-3
L
M
N
O
P
60
14
133
8
10
C
G
H
I
J
T
K
L
M
N
603
126
164
15
603
126
164
15
Q
299
O
34
34
Inhaltsverzeichnis
loading

Inhaltsverzeichnis