Herunterladen Inhalt Inhalt Diese Seite drucken

Componentes Principais Da Caixa De Distribuição; Diagrama Funcional - Rotex Rkhbrd011Aav1 Installationsanleitung

Vorschau ausblenden Andere Handbücher für RKHBRD011AAV1:
Inhaltsverzeichnis
Verfügbare Sprachen
  • DE

Verfügbare Sprachen

  • DEUTSCH, seite 4
Componentes principais da caixa de distribuição
Unidades do tipo V1 (monofásicas)
11
7
15 9 12 18
8
19
16
13
21
14
1
2
3
5
20
6
Unidades do tipo Y1 (trifásicas)
11 7 15 12 18 17
8
19
16
13
14
21
24
4
1
2
3
20
1.
Placa de circuito principal
A placa de circuito principal controla o funcionamento da
unidade.
2.
Placa de circuito impresso de controlo
3.
Placa de circuito impresso do inversor
4.
Placa de circuito impresso de controlo do inversor (só nas Y1)
5.
Placa de circuito impresso de QA (só nas V1)
6.
Placa de circuito impresso do filtro
7.
Placa de circuito impresso de E/S digitais (opcional)
8.
Placa de circuito impresso de exigência (opcional)
9.
Placa de circuito de serviço (só nas V1)
10. Placa de bornes X1M
Placa de bornes principal, que permite conectar facilmente as
ligações eléctricas locais à fonte de alimentação.
RKHBRD011~016AAV1+Y1
Unidade interior para o sistema de bomba de calor ar/água
4PW55786-1
16
17
16
22
10
16
10
16
22
23 6
11. Placa de bornes X3M
Placa de bornes das ligações eléctricas locais para ligações de
CC.
12. Placa de bornes X2M
Placa de bornes das ligações eléctricas locais para ligações de
CA.
13. Conexão de CC, X1Y
14. Conexão da bomba, X2Y
15. Conexão de CA, X3Y
16. Apoios para as braçadeiras de cabos
Os apoios para as braçadeiras de cabos permitem fixar a
cablagem à caixa de distribuição, utilizando braçadeiras, para
protegê-los contra tracção excessiva.
17. Entrada da cablagem de alimentação
18. Entrada das ligações eléctricas locais de CA
19. Entrada das ligações eléctricas locais de CC
20. Entrada do cabo do compressor
21. Relé da interface, K1A
22. Pontes de ligações eléctricas
23. Fusível F1 (só nas Y1)
24. Fusível F2 (só nas Y1)
NOTA
O esquema de ligações eléctricas encontra-se no
interior da tampa da caixa de distribuição.

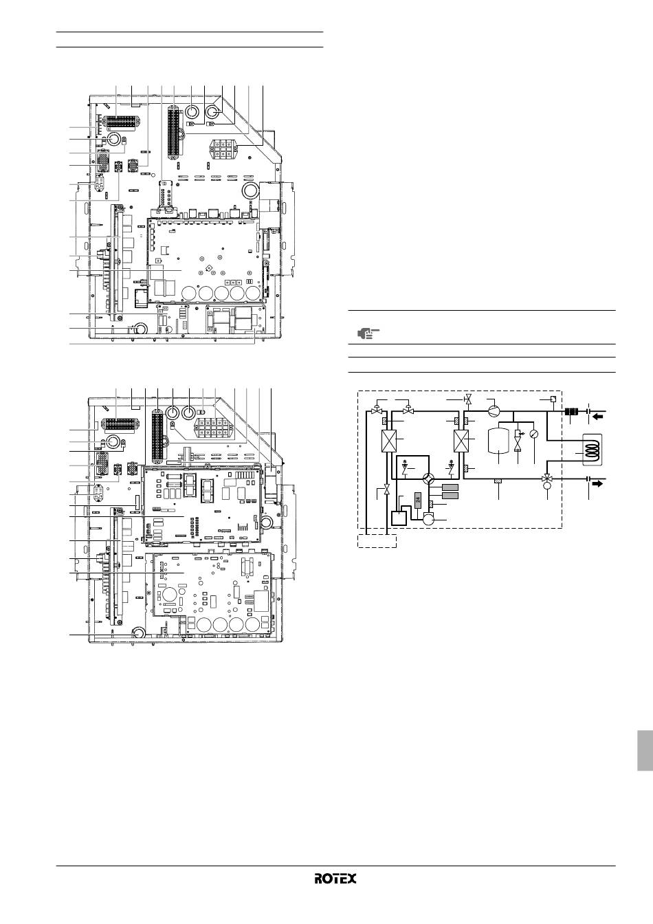
Diagrama funcional

2
9
8
29
28
3
6
6
22
4
23
30
25
5
1
1
Unidade de exterior
2
Unidade interior
3
Permutador de calor do
refrigerante
4
Acumulador
5
Compressor
6
Orifício de saída
7
Permutador de calor
refrigerante-água
8
Válvula de drenagem
9
Válvula electrónica de
expansão
10
Válvula de segurança
11
Bomba
12
Válvula de purga de ar
13
Manómetro
14
Reservatório de
expansão
15
Filtro de água
16
Válvula de enchimento
(fornecimento local)
12
16
11
27
15
17
7
19
26
14
10
13
M
21
20
18
17
Entrada de água da válvula de
fecho
18
Saída de água da válvula de
fecho
19
Tanque de água quente
doméstica (opcional)
20
Válvula motorizada de 3 vias
(opcional)
21
Corte térmico (Q2L)
22
Pressóstato de alta pressão
(S1PH)
23
Sensor de alta pressão (B1PH)
24
Sensor de baixa pressão
(B1PL)
25
Termístor de descarga (R6T)
26
Termístor da saída de água
(R5T)
27
Termístor do retorno de água
(R4T)
28
Termístor do R134a líquido
(R7T)
29
Termístor do R410A líquido
(R3T)
30
Válvula de 2 vias
Manual de instalação
7

Quicklinks ausblenden:

Inhaltsverzeichnis
loading

Inhaltsverzeichnis