Herunterladen Diese Seite drucken

Stobag UNIVERSAL US3510 Bedienungsanleitung Seite 2

Senkrechtmarkise
Vorschau ausblenden Andere Handbücher für UNIVERSAL US3510:
UniverSal US3510
Senkrechtmarkise
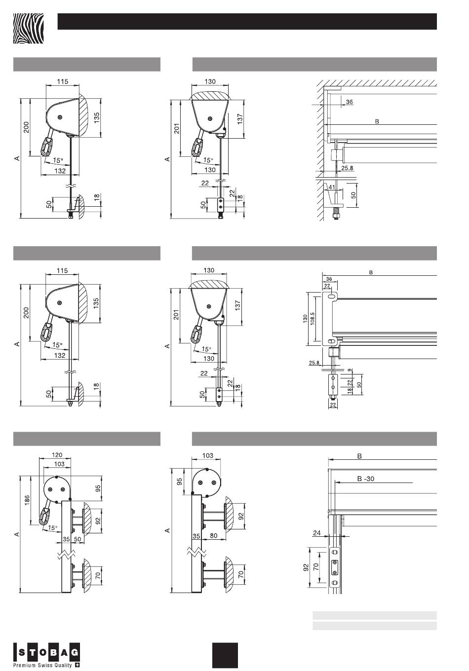
US3510/1
Wand-Montage
US3510/2
Wand-Montage
US3510/3
Tuch innenabrollend
mit Seilführung
Decken-Leibungs-Montage
mit Stangenführung
Decken-Leibungs-Montage
mit aluführung
Tuch aussenabrollend
5.12
03/2012
Montageplan
Montageplan
Montageplan
A = Total Höhe
B = Total Breite
Technische Änderungen jederzeit vorbehalten © STOBAG
www.stobag.com
loading

Verwandte Produkte für Stobag UNIVERSAL US3510