Anmelden
Hochladen
Herunterladen
Zu meinen Handbüchern
Löschen
Teilen
URL dieser Seite:
HTML-Link:
Lesezeichen hinzufügen
Hinzufügen
Handbuch wird automatisch zu "Meine Handbücher" hinzugefügt
Diese Seite drucken
×
Lesezeichen wurde hinzugefügt
×
Zu meinen Handbüchern hinzugefügt
Anleitungen
Marken
SystemAir Anleitungen
Lüftungsanlagen
FGT 022
Schaltplan
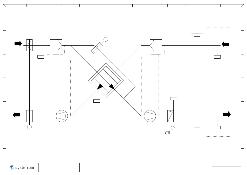
SystemAir FGT022 BASIC Schaltplan Seite 2
Vorschau ausblenden
Andere Handbücher für FGT022 BASIC
:
Montage- und betriebsanleitung
(14 Seiten)
1
2
3
4
5
6
7
8
9
10
11
12
13
14
15
16
17
18
19
20
21
Seite
von
21
Vorwärts
/
21
Lesezeichen
0
1
A
AUSSENLUFT
B
-14B3
B440/PT1000-2,5
AUßENTEMPERATUR
C
D
FORTLUFT
E
-5M1
LF 24A
KLAPPENSTELLANTRIEB
F
G
GEZEICHNET VON :
ÜBERPRÜFT :
DATUM :
2
3
4
FS2
DRUCKSENSOR
-14A2
-14B4
B440/PT1000-2,5
VEREISUNGSSCHUTZFÜHLER
-3M1
ABLUFTVENTILATOR
Primož Wagner
SCHALTPLANNUMMER :
1.01.2022
5
6
7
LM24A - SR
KLAPPENSTELLANTRIEB
-5M2
ZULUFTVENTILATOR
PROJEKT :
8
9
10
+
UMGEBUNG
DRUCKSENSOR
FS1
DRUCKSENSOR
-14A1
B440/PT1000
FROSTSCHUTZFÜHLER
-14B2
-2M1
DRUCKSENSOR
-4P1
UMGEBUNG
-
LÜFTUNGSGERÄT :
FGT022 BASIC
11
12
A
KANAL
-
-8A2
ABLUFT
B
-14B1
B440/PT1000-2,5
ABLUFTTEMPERATUR
C
D
ZULUFT
-8A1
-8B1
TG-KH/PT1000-2,5
ZULUFTTEMPERATUR
KANAL
+
G
1
BLATT :
1
NÄCHSTES BLATT :
17
GESAMTBLATT :
E
F
Vorherige
Seite
Nächste
Seite
1
2
3
4
5
6
Verwandte Anleitungen für SystemAir FGT022 BASIC
Klimaanlagen SystemAir FGT Montage- Und Betriebsanleitung
Kompaktgeräte (14 Seiten)
Lüftungsanlagen SystemAir Topvex FC04 EL Installationsanleitung
Kompaktlüftungsgerät (24 Seiten)
Lüftungsanlagen SystemAir Topvex FC02 EL Installationsanleitung
Kompaktlüftungsgerät (24 Seiten)
Lüftungsanlagen SystemAir Topvex FR03 Betriebs- Und Wartungsanleitung
Kompaktlüftungsgerät (42 Seiten)
Lüftungsanlagen SystemAir Topvex FR03 Betriebs- Und Wartungsanleitung
Kompaktlüftungsgeräte (26 Seiten)
Lüftungsanlagen SystemAir Topvex FR03 Installationsanleitung
Kompaktlüftungsgeräte (22 Seiten)
Lüftungsanlagen SystemAir Topvex FR06 Installationsanleitung
Kompaktlüftungsgerät (26 Seiten)
Lüftungsanlagen SystemAir Topvex FR06 Betriebs- Und Wartungsanleitung
(34 Seiten)
Lüftungsanlagen SystemAir Topvex FR06 Betriebs- Und Wartungsanleitung
(20 Seiten)
Lüftungsanlagen SystemAir Topvex FR03 Installationsanleitung
(24 Seiten)
Lüftungsanlagen SystemAir Topvex SR/TR03 Betriebs- Und Wartungsanleitung
(34 Seiten)
Lüftungsanlagen SystemAir Topvex SX/C Betriebs- Und Wartungsanleitung
(34 Seiten)
Lüftungsanlagen SystemAir Topvex FR 08 EL Schaltplan
(7 Seiten)
Lüftungsanlagen SystemAir DVG-H F200 Anleitung Für Transport, Montage, Inbetriebnahme Und Instandhaltung
(25 Seiten)
Lüftungsanlagen SystemAir Topvex SF02 Installationsanleitung
(24 Seiten)
Lüftungsanlagen SystemAir TA 450 EL Betriebs- Und Wartungsanleitung
(30 Seiten)
Verwandte Produkte für SystemAir FGT022 BASIC
SystemAir FGT
SystemAir FGT 010
SystemAir FGT 015
SystemAir FGT 035
SystemAir SYSPLIT WALL FLEXI 18
SystemAir SYSPLIT WALL FLEXI 24
SystemAir SYSPLIT WALL FLEXI 09
SystemAir SYSPLIT WALL FLEXI 12
SystemAir Topvex FC06
SystemAir DVG-H F300
SystemAir DVG-H F400
SystemAir Topvex FS 30
SystemAir Topvex FR 20
SystemAir DVVI F600
SystemAir FDS-EI120
SystemAir FRQ-4A
Drucken
Lesezeichen umbenennen
Lesezeichen löschen?
Möchten Sie es aus Ihren Handbüchern löschen?
Anmelden
Anmelden
ODER
Mit Facebook anmelden
Mit Google anmelden
Anleitung hochladen
Von PC hochladen
Von URL hochladen