Herunterladen Diese Seite drucken

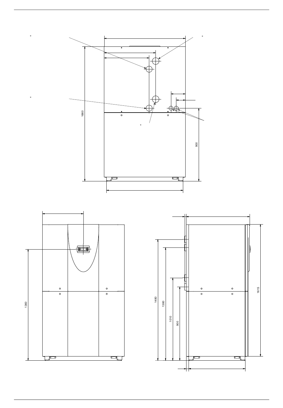
Maßbild / Dimensioned Drawing / Schéma Coté - Dimplex Sih 20Te Montage- Und Gebrauchsanweisung

Verfügbare Sprachen

Verfügbare Sprachen

Anhang · Appendix · Annexes
1 Maßbild / Dimensioned drawing / Schéma coté
  ,QQHQ  $X‰HQJHZLQGH
+HL]XQJVYRUODXI
$XVJDQJ DXV :3
 ´ LQWHUQDO  H[WHUQDO WKUHDG
+HDWLQJ ZDWHU VXSSO\
+HDW SXPS RXWOHW
)LOHWDJH LQWH[W  ´
$OOHU HDX GH FKDXIIDJH
6RUWLH GH OD 3$&
  ,QQHQ  $X‰HQJHZLQGH
+HL]XQJVUFNODXI
(LQJDQJ LQ :3
 ´ LQWHUQDO  H[WHUQDO WKUHDG
+HDWLQJ ZDWHU UHWXUQ
+HDW SXPS LQOHW
)LOHWDJH LQWH[W  ´
5HWRXU GH OD 3$&
(QWUpH GDQV OD 3$&

A-II



  ,QQHQ  $X‰HQJHZLQGH
:lUPHTXHOOH
$XVJDQJ DXV :3
 ´ LQWHUQDO  H[WHUQDO WKUHDG
+HDW VRXUFH
+HDW SXPS RXWOHW
)LOHWDJH LQWH[W  ´
6RXUFH GH FKDOHXU
6RUWLH GH OD 3$&

FD  DSSUR[  HQY
452234.66.11 · FD 9612
  ,QQHQ  $X‰HQJHZLQGH
:lUPHTXHOOH
(LQJDQJ LQ :3
 ´ LQWHUQDO  H[WHUQDO WKUHDG
+HDW VRXUFH
+HDW SXPS LQOHW
)LOHWDJH LQWH[W  ´
6RXUFH GH FKDOHXU
(QWUpH GDQV OD 3$&


(OHNWUROHLWXQJHQ
(OHFWULF OLQHV
/LJQHV pOHFWULTXHV




SIH 20TE
www.dimplex.de
loading