Herunterladen Inhalt Inhalt Diese Seite drucken

Sharp MultiSync E244F Bedienungsanleitung Seite 29

Vorschau ausblenden Andere Handbücher für MultiSync E244F:
Inhaltsverzeichnis
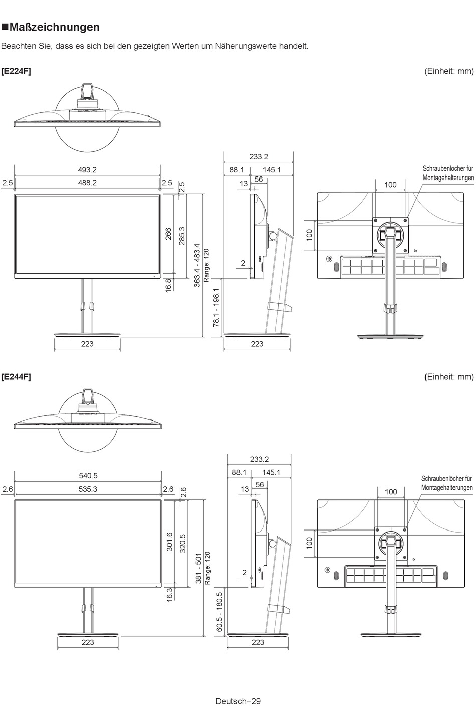
nMaßzeichnungen
Beachten Sie, dass es sich bei den gezeigten Werten um Näherungswerte handelt.
[E224F]
493.2
2.5
488.2
223
[E244F] 
540.5
535.3
2.6
223
233.2
88.1
2.5
13
2
223
233.2
88.1
2.6
13
2
223
Deutsch−29
145.1
56
145.1
56
(Einheit: mm)
Schraubenlöcher für
Montagehalterungen
100
(Einheit: mm)
Schraubenlöcher für
Montagehalterungen
100
Inhaltsverzeichnis
loading

Diese Anleitung auch für:

Multisync e224fMultisync dd-e224f

Inhaltsverzeichnis