Herunterladen Inhalt Inhalt Diese Seite drucken

Evc-Gateway Sg05 - Simrad Is40 Installationsanleitung

Vorschau ausblenden Andere Handbücher für IS40:
Inhaltsverzeichnis

EVC-Gateway SG05

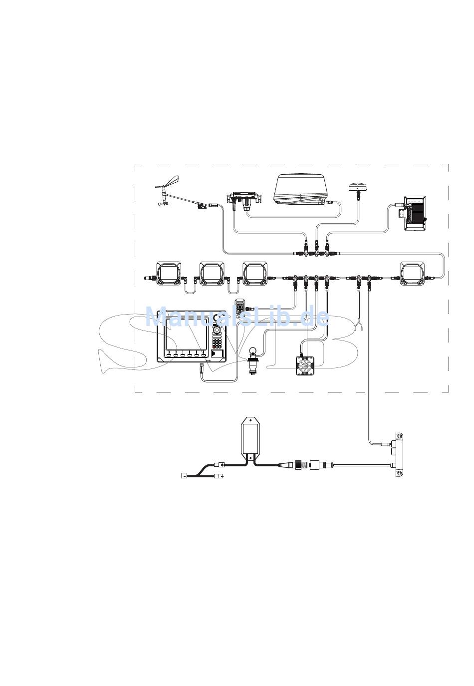
Das Gateway SG05 kann anstelle eines Autopilot-Computers an
das NMEA 2000-Netzwerk angeschlossen werden. Es stellt eine
Verbindung zu einem Volvo-Gateway für die Kommunikation mit
dem EVC-System von Volvo her.
In diesem Fall werden die Ruderlagendaten vom EVC-System
abgerufen, und eine separate Ruderlagenanzeige ist nicht
erforderlich.
LTW
LTW
1
IS40/Triton-System
2
SimNet-zu-Micro-C-Adapterkabel
3
SD05 SimNet-zu-Volvo-Gateway
4
Volvo-Gateway (Teilenr. 000-1-258-001)
Verkabelung |
IS40/Triton-System Installationsanleitung
LTW
LTW
4
2
1
3
| 13
Inhaltsverzeichnis
loading

Diese Anleitung auch für:

Triton

Inhaltsverzeichnis