Herunterladen Inhalt Inhalt Diese Seite drucken

Maßzeichnungen; Technische Daten - Sick I110 Lock Betriebsanleitung

Vorschau ausblenden Andere Handbücher für i110 Lock:
Inhaltsverzeichnis
Verfügbare Sprachen

Verfügbare Sprachen

Ergänzende Informationen
SICK unterstützt Sie auf Anfrage bei der Entsorgung dieser Geräte.
9

Technische Daten

9.1 Technische Daten
Merkmale
Merkmale
Gehäusewerkstoff
Schutzart (IEC 60529)
Mechanische Lebensdauer
B
(EN ISO 13849) bei DC-13 100 mA/24 V 5 × 10
10D
Bauart
Kodierungsstufe des Betätigers
Betriebsumgebungstemperatur
Anschlussart
Anfahrgeschwindigkeit max.
Betätigungshäufigkeit max.
Verschmutzungsgrad
(extern, nach EN 60947)
Betätigungskraft max. bei 20°C
Max. Kraft, gegen die entsperrt werden kann
Rückhaltekraft, entriegelt max.
Zuhaltekraft F
max
Betätiger gerade und radial
Betätiger gewinkelt
Zuhaltekraft F
gemäß (EN ISO 14119)
Zh
(F
= F
/1,3)
Zh
max
Minimale Türradien
45 N bei i110-E0313S06
1)
Elektrische Daten
Elektrische Daten
Thermischer Strom l
th
Schaltprinzip
Leiterquerschnitt (starr/flexibel)
Bemessungsisolationsspannung U
i
Bemessungsstoßspannungsfestigkeit U
Gebrauchskategorie (IEC 60947-5-1)
Schaltspannung min.
1)
Schaltstrom min. bei 24 V DC
Bedingter Bemessungskurzschlussstrom
Kurzschlussschutz (Steuersicherung) (IEC
60269)
Magnetversorgungsspannung (+10 % ... –15
%)
Magnetleistung max.
Einschaltdauer ED
Bei 10 mA.
1)
8020542/1PK9/2024-10-02/de, en
Variante mit Lei‐
Variante mit Steck‐
tungseinführung
verbinder
Glasfaserverstärkter Thermoplast
IP 67
1 × 10
6
Schaltspiele bei geringer Last
6
Bauart 2 (EN ISO 14119)
Geringe Kodierungsstufe (EN ISO 14119)
–20 °C ... +55 °C
Steckverbindung, 1 ×
3 × M20
M12 (8-polig)
20 m × min
–1
1200 × h
–1
3 (Industrie)
35 N
20 N
30 N
1)
2500 N
1500 N
2000 N
siehe Tabelle 8
Variante mit Lei‐
Variante mit Steck‐
tungseinführung
verbinder
4 A
1 A
Schleichschaltglied
0,34 mm² ... 1,5
mm²
250 V
30 V
2,5 kV
1,5 kV
imp
AC-15: 230 V/4 A;
AC-15: 24 V/1 A;
DC-13: 24 V/4 A
DC-13: 24 V/1 A
12 V
1 mA
100 A
4 A gG
1 A gG
AC/DC 24 V
8 W
100 %
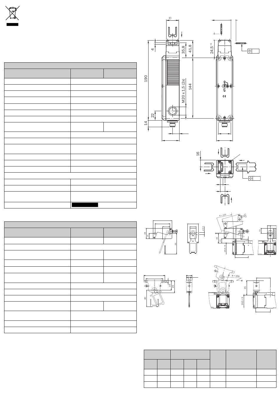
9.2 Maßzeichnungen
i110 Lock Variante mit Betätigungskopf rechts
30
16
42
Betätiger
50
40
28.6
20
16
Abbildung 3: iE15-R1
50
14
ø 5,5
40
Abbildung 4: iE15-R2
10 Bestelldaten
10.1 Bestelldaten
i110 Lock mit Zuhalteprinzip Arbeitsstrom
Bestelldaten i110 Lock mit Zuhalteprinzip Arbeitsstrom
Zuhaltungsüber‐
Türüberwachung
wachung
Zwang
Schlie‐
Zwang
Öffner
söffner
ßer
söffner
2
1
0
1
2
0
0
1
2
0
1
0
+5
24,5
30
40
M = 0,6 Nm
4
9
20
35.5
Anschlus
Typenschlüssel
sart
Schlie‐
ßer
0
Leitung
i110-E0233
1
Leitung
i110-E0253
1
Leitung
i110-E0313S06
i110 Lock | SICK
0,5
0,5
8
16
33,7
35,5
Artikelnum‐
mer
6051597
6051599
6035038
5
Inhaltsverzeichnis
loading

Inhaltsverzeichnis